EasyManua.ls Logo

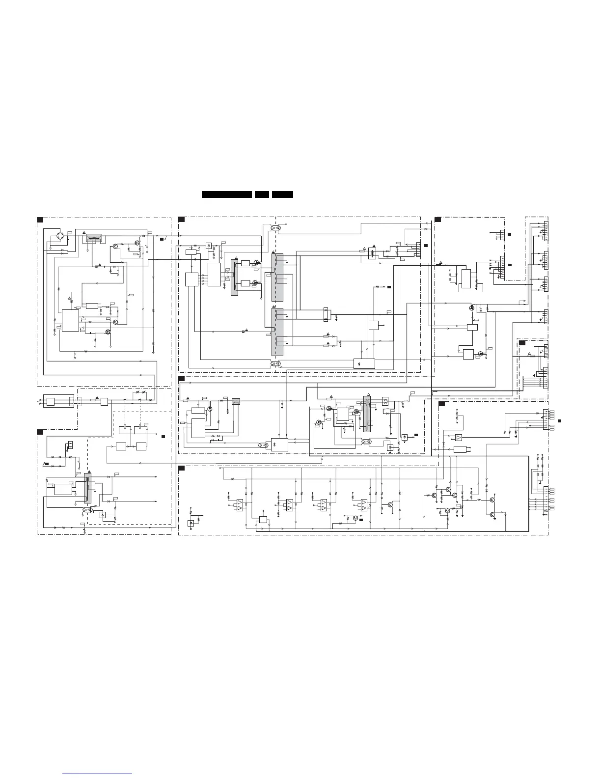
Philips LC4.9E - 6.2 Block Diagram Supply

Philips LC4.9E
162 pages
Print Icon
To Next Page IconTo Next Page
To Next Page IconTo Next Page
To Previous Page IconTo Previous Page
To Previous Page IconTo Previous Page
Loading...
22LC4.9E AB 6.
Block Diagrams, Test Point Overviews, and Waveforms
Block Diagram Supply
PRECONDITIONER
HOT
HOT
COLD
COLD
HOT
1
3
6600
GBU8J
416
1246
14
5600
2
-
+
2603
6606
6605
3605
3668
3651
3663
3228
3214
3218
3092
7090 :
7092
7093
LM317T
6211
6660 2664
2663
6661
7650
MC33368
CONTROL
MULT
ZC
AC3 100-230VAC2
AC5 100-230VAC1
5
7
6
12
1
2
8
7
16
11
3
GATE
VCC
LINE
VFB
CS
7500
TNY256
ENABLE
DRAIN
2662
2121
2616
2053
3660
3680
3641
2640
2666
3666
3640
6665
6663
BIAS
7661
MC34063AD
DC TO DC
CONVERTOR
3671
3611
3610
7608
3608
7610
STW26NM50
7640
BSN20
7641
3614
6611
3011
6095
7001
MC34067P
15
3095
3096
400V-HOT
400V-HOT
400V-HOT
SW25V-HOT
SW25V-HOT
7017
7018
PROT
25V-HOT
A
A
7260
L4973
7230
L4940
7227
TL431CZ
7220
TCET1102
D
S
G
D
S
G
1400
3452
T6.3A
0308
5005
5401
5402
7460
7465
7470
12
MAINS
FILTER
MAINS
FILTER
2
1
2
1
12
-t
0
3450
+t
0
3451
+t
0
HOT COLD
HOT COLD
43
1450
43
1460
+9V_STBY_SW
+9V_STBY
+5V_STBY_SW
SUPPLY_ON
- STANDBY SUPPLY -
- ERROR LOGGING -
- VCC SUPPLY -
- AUDIO SUPPLY -
STANDBY
VS- SWITCHED
+12V SUPPLY
CONTROL
ACTIVATING
ACTIVATING
DELAY
6513
BYG10
6512
BYG10
6510
BYG10
6511
BYG10
400V-HOT
SOURCE
5500
6505
SB34
6504
RS1G
3501
2505
3505
3503
6503
RS1G
2
3
6
7
8
9
4
5
7-8
1
3508
+25V-HOT +25V-HOT
7501
TCET1102
7120
TCET1102
3506
+t
2503
3507
4
5220
7212
TEA1507
1
2
4
3
3
1
8
6
5
4
14
12
3
1
2
5
7
1
2
4
3
PRECONDITIONER
FILTERS STANDBY
MAINS FILTER UNIT
7502
TS2431
1
2
1
4
3
2
3
7304
TL43IC2
0323
1
NC
VA
VS
VCC
NC
2
3
4
5
6
7
8
9
10
0342
1
NC
VA
VCC
VCC
NC
2
3
4
5
6
7
NC
0352
1
NC
VAVA
VCC
NC
2
3
4
5
6
7
NC
NC
VA
6142
BYD33D
7052
IRFR18N15D
0333
1
VCC
VS
NC
2
3
4
5
6
7
VS
VS
+30V
V.S._UNSW
70-90V
3
2
VB
6225
VCC
8
9
A5
FITER STANDBY
A2
A2
PROTECTIONS
A3
A3
A2
A5
C
A7
TO
CN23
PDP
1002
6291
6292
7
6
5
4
3
2
1
TO 1002
PDP AUDIO
TO
CN33
PDP
LATCH
TO
CN42
PDP
B21
TO 1M46
SSB
A3
TO
CN52
PDP
SUPPLY_ON
VCEGO
STANDBY
t
LATCH
OVERVOLTAGE
POK
VSA-CONTROL
VCC
VCC
+8V6
+3V3_STBY_SW
POWER_OK
3372
STANDBY
0306
3
1
4
6
TO
CN6
PDP
0319
1
2
3
4
5
6
7
8
9
10
1004
T2A
1200
VS_UNSW
70-90V
T2A
1110
7117
PSMN035
TA5
70-90V
TO
CN7
PDP
0307
15
20
VSAGO
VCEGO
PFCGO
13
11
VRA
9
VRS
7
5
VAK
2
3
VSK
1
DC_PROT
VCEGO LATCH DC_PROT
11
10
9
8
13
7330 C+D
2x
2x
A2
A3
A2
A3
6366
7391
7348
7393
3346
3345
VA VS
3347
7004
3343
7341
3341
3342
3350
3354
3390
+5V_STBY_SW
3396
3305
3303
3302
3316
3397
+5V_STBY_SW
3364
+5V_STBY_SW
+12V_OVP
3389
6347
6362
3361
SUPPLY-ON
6364
6340
6341
7389
7351
7352
3353
3344
3349
3202
VCC_GO
3224
FAN CONTROL
3225
+8V6
DETECTION
CIRCUIT
+8V6 UNDER
VOLTAGE PROT.
7362
VCC_GO
+2.5V
ref
VA
VA
+30V
VS
VS_UNSW
70-90V
VB
BIAS
+12V
3363
7366-2
6378
5
7
7326
7327
6
3360
+9V_STBY_SW
3388
3358
3332
333833333321
5225
7200
BSN304
7217
PSMN070
5121
18
16
6230
2225
2210
2230
D
G
S
7202
BSN20
D
G
S
VCC
DRAIN
DRIVE
SENCE
GND
CTRL
DEMAG
D
G
S
7112
TEA1507
6
5
2
4
VCC
DRAIN
DRIVER
SENCE
DEMAG
CTRL
7110
SWITCH ON
LOGIC
VS
SWITCH
LOGIC
SEQUENCE
DISCHARGE
7007
7020
HIGH
SIDE
DRIVE
VA
ADJ.
14
7
6
5
4
1
7330 A+B
6333
6334
VCC
3320
2
11
10
9
8
13
7308 C+D
2V5
6321
6322
VA
3311
3313
3317
14
VA PROTECTION VCC PROTECTION 12V PROTECTION
3312
A7
7
6
5
4
1
7308 A+B
2V5
2V5
6312
6313
VS_UNSW
70-90V
3300
5001
3118
6120
3304
2
3117
2
4
1
3
21146111
61133113
7375
7376
VS PROTECTION
2V5 CIRCUIT
VSA CONTROL
VSAGO
VSA-
CONTROL
LOGIC
+30V
+5V_STBY_SW
3324
AUX-SUPPLY
A7
LLC SUPPLY
A6
PROTECTIONS
A3
- VA-SUPPLY -
- LLC-CONVERTER -
VS-SUPPLY
- BIAS-SUPPLY -
1
3
2
D
G
S
8
VCC &
DRAIN
CONTROL
1
3
SOFT
START
+
CURRENT
PROTECTION
CONTROL
VCC
OA
OB
FI
2292
2294
2022
7010,7011
2021
VRA
VSA_CONTROL
41
32
CONTROL
CIRCUIT
VRS
CONTROL
3
2
4
6
8
7
14
12
10
1084
F1A
1082
F2,5A
1083
F2,5A
D
G
S
7005
STU16NB501
7003
TCET1102
10
11
6
3
4
1
3
2
16
14
12
11
2020
10
9
4
1
3
2
5290
5002
2
4
3
1
7008,
7021, 7012
LOW
SIDE
DRIVE
D
G
S
D
G
S
7006
BZG03
14
13
3050
7002
TCET1102
6021
BYU28
6045
BYU28
2
6044
STTH2003C
7050
PSMN035
6291
D458L20U
VSND_POS
DC_PROT
DC_PROT
VSND_NEG
GND_SND
D
G
S
F001
F500
F411
I101
I107
F502
I216
I214
F140
F116
I236
I213
I220
F503
F610
F609
F600
F601
F293
F343
I504
I510
I508
I625
I057
I038
F294
I629
F005
F003
F004
I083
3
1
I083
I618
F604
I105
I202
I200
I201
F300
F304
F305
F310
F309
F302
F301
PFCGO
VSAGO
VCEGO
VRS
VRA
0311
1
2
3
4
5
6
7
8
9
I900
I901
I903
I904
I905
I906
I208
I622
POK
+5V_STBY_SW
CONTROL
6
3
16
14
12
11
10
9
5660
CONTROL
5229
5612
1M05
1
2
SECOND
STANDBY
6641
A3
A3
VTUN
3072
VRS
FEEDBACK
3053
11
13
+5V_STBY_SW
3308
1200
T2A
+9V_STBY
VTUN
0323
11
10
9
8
7
6
5
4
3
2
1
+5V_STBY_SW
+8V6
+12V
POR
+9V_STBY_SW
3355
3356
3391
+5V_STBY_SW
1M10
1
2
3
4
+12V
AL
TO 1M10
AMBIENT
LIGHT
+9V_STBY
A2
A3
A3
A3
A3
A3
A2
A3
A6
A7
A6
A7
A3
A3
A3
A3
A3
A3
3346
3345
6348
+12V_OVP
3346
3345
12
7,8
B21
TO 1M03
SSB
+5V_STBY_SW
TO
CN11
PDP
AUX-SUPPLY
A7
SUPPLY 42” FHP
A7
F608
I943
F016
2V5
2V5
F_15670_003.eps
010805
5004

Table of Contents

Related product manuals