EasyManua.ls Logo

Philips LC4.9E - SSB: Scaler Interface (B9)

Philips LC4.9E
162 pages
Print Icon
To Next Page IconTo Next Page
To Next Page IconTo Next Page
To Previous Page IconTo Previous Page
To Previous Page IconTo Previous Page
Loading...
94LC4.9E AB 7.
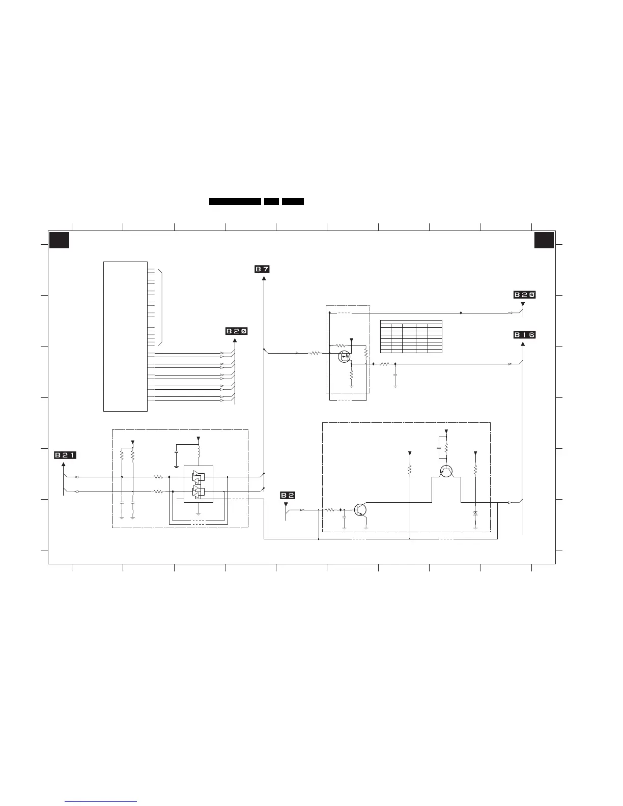
Circuit Diagrams and PWB Layouts
SSB: Scaler Interface
SCALER INTERFACE
TO SCALER
FROM HERCULES
RES
RES
FOR PDP ONLY
NC (PDP)
NC
FROM EPLD
TO TOP CONNECTORS
TO EPLD
TO EPLD
3A03
3A05
3A04
7A01
4A03
3A06
2A03
5V DC 5V PWM 3V3 DC 3V3 PWM
BACKLIGHT CONTROL
390R
-
1K
Y
-
10K
1u
390R
-
1K
Y
-
0R
-
-
-
-
-
Y
10K
1u
-
-
-
-
Y
0R
-
RES
RES
RES
RES
FOR UFD ONLY
RESERVED
4A01 F3
4A02 B6
4A03 D6
4A04 E4
4A05 F6
4A06 F8
5A00 E3
6A01 F8
7801-8 A2
7A00 E3
7A01 C6
7A02 E6
7A03 E8
IA00 C7
IA03 F6
IA05 B8
IA06 C6
IA07 B6
IA08 E2
IA09 E2
A
B
C
D
E
F
2A00 D3
2A01 E2
2A02 E2
2A03 C7
2A12 F6
2A13 D8
3A00 E2
3A01 E2
3A02 C5
3A03 B6
3A04 C6
3A05 C6
3A06 C7
3A07 E2
3A08 E2
3A10 F6
3A11 E7
3A13 D8
3A14 E9
123 45678 9
123 45678 9
A
B
C
D
E
F
IA09
4A00 F3
IA08
6A01
BZX384-C3V9
4A06
+3V3STBY
+3V3STBY
+5V
7A03
BC847BW
100n
2A13
3A13
10K
4K7
3A14
3A11
4K7
+3V3SW
10K
3A083A07
10K
IA07 IA05
IA06
4A02
SHIELD2|DEGRN4
AE11
SHIELD3|DEGRN5
AE13
SHIELD4|DEBLU2
AD14
SHIELD5|DEBLU5
AF14
B2p|DEBLU3
AF12
B3n|DEGRN7
AF11
B3p|DEGRN6
AF13
BCn|DEGRN9
AE12
BCp|DEGRN8
AF10
SHIELD0|DEGRN2
AC11
SHIELD1|DEGRN3
AD11
AE19
A3p|GPIO_G06_B4|DORED6
AF20
ACn|GPIO_G06_B7|DORED9
AE20
ACp|GPIO_G06_B6|DORED8
AE16
B0n|DEBLU9
AF16
B0p|DEBLU8
AE15
B1n|DEBLU7
AF15
B1p|DEBLU6
AE14
B2n|DEBLU4
AF23
A0n|GPIO_G05_B7|DOGRN9
AE23
A0p|GPIO_G05_B6|DOGRN8
AF22
A1n|GPIO_G05_B5|DOGRN7
AE22
A1p|GPIO_G05_B4|DOGRN6
AF21
A2n|GPIO_G05_B2|DOGRN4
AE21
A2p|GPIO_G05_B1|DOGRN3
AF19
A3n|GPIO_G06_B5|DORED7
LVDS
7801-8
GM1501-LF-BD
10n
2A12
3A03
IA03
4A04
4A00
4A01
100n
2A00
5A00
SCL17
SDA0 3SDA16
VCC
8
+3V3SW
EN 5
GND
4
NC
1
2SCL0
7A00
PCA9515ADP
100p
2A02
100p
68R
2A01
3A01
3A00
68R
1K0
3A05
+5VSWI
3A04
SI2301DS-T1
3
1
2
1K0
3A02
7A01
IA00
2A03
4A03
1u0
10K
3A06
4A05
10K
BC847BW
7A02
3A10
BACKLIGHT_DIM
BUF_ENABLE
SDA_DMA_BUS1_DISP SDA_IO
SCL_IO
TXB3-
TXBC-
TXB2+
TXB2-
TXB1+
TXB1-
TXB0-
TXB0+
SCL_DMA_BUS1_DISP
BACKLIGHT_CTRL
STANDBY
SC_STANDBY
BU_LHT_ADJ1
TXB3+
TXBC+
B9
B9
3139 123 6141.1
G_15351_009.eps
080906

Table of Contents

Related product manuals