EasyManua.ls Logo

Philips LC4.9E - SSB: Side Connectors (B17)

Philips LC4.9E
162 pages
Print Icon
To Next Page IconTo Next Page
To Next Page IconTo Next Page
To Previous Page IconTo Previous Page
To Previous Page IconTo Previous Page
Loading...
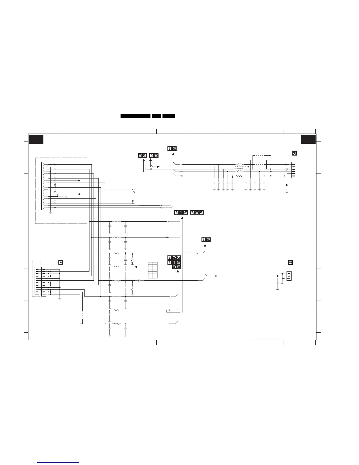
102LC4.9E AB 7.
Circuit Diagrams and PWB Layouts
SSB: Side Connectors
(1M06)
OF SIDE I/O
(1M21)
SIDE CONNECTORS
(1M01)
TOP/SIDE KEYBOARD
RES
RES
FOR DISC/ ARCH CABINET
RES
RES
RESERVED
IR/ LED
RES
3V3
3V3
TO/FROM 1540 OF
TO/FROM 1304
2K13
2K14
2K16
2K17
3K07
3K09
10p
10p
10p
10p
10R
10R
UFD
*
**
**
*
*
/
/
/
5K00 A7
5K01 D3
5K02 A7
FK00 E1
FK01 E1
FK02 E1
FK03 E1
FK04 E1
FK05 E1
FK06 E1
FK07 E1
FK08 E8
FK09 E8
FK10 E1
FK11 B9
IK00 A8
IK01 A8
IK02 A8
IK03 B8
IK16 A7
IK17 D4
IK18 E4
2K16 F3
2K17 F4
2K18 E8
2K19 E3
2K20 E3
2K21 B6
2K22 B7
2K23 B7
2K24 B7
2K25 B7
2K26 B8
2K27 B8
2K28 B8
3K00 C3
3K01 C3
3K02 D3
3K03 D4
3K05 E3
3K06 E4
3K07 E3
3K08 F3
3K09 F3
3K11 A7
3K12 A7
3K13 B7
4K01 A8
4K02 F2
4K03 A8
4K04 A8
4K05 A8
4K06 B2
4K07 B2
F
A
B
C
D
E
F
1K00 A9
1K01 D1
1K02 E9
1K03 A1
1K04 D1
2K00 B7
2K01 B6
2K02 C3
2K03 C4
2K04 D3
2K05 D4
2K06 D3
2K07 D4
2K08 D4
2K10 E3
2K11 E4
2K12 E4
2K13 F3
2K14 F4
123 45678 9
123 45678 9
A
B
C
D
E
2K15 F3
19
2
20
3
4
5
6
7
8
9
1
10
11
12
13
14
15
16
17
18
1K03
4K07
+3V3STBY_1
4K06
4K05
4K04
4K03
4K01
2K28
100p
100p
2K27
2K26
100p
2K25
100p
2K23
100p
100p
2K24
2K21
100p
100p
2K22
1u05K02
3K13
68R
68R
3K12
3K11
68R
1n0
2K19
2K20
1n0
5K01
1u0
100p
2K18
IK17
IK18
FK11
2
3
4
5
6
7
8
9
1K04
1
10
11
1
2
3
4
5
6
1K00
B6B-PH-K
+5VSW
+3V3STBY_1
4K02
+3V3STBY
2K01
1n0
1u05K00
1n0
2K00
1K02
1
2
3
FK09
B3B-PH-K-S(LF)
FK08
IK16
IK02
IK03
IK01
IK00
2u2
2K08
2K12
2u2
3K06
15K
15K
3K03
FK07
FK06
FK04
FK05
FK03
FK01
FK02
FK00
2K15
68R
100p
3K08
2K03
10p
100R
3K00
10p
2K02
100p
100p
2K16 2K17
3K09
39R
2K14
100p
2K13
100p
3K07
39R
2K11
2K10
100p
10K
100p
3K05
100p
2K07100p
3K02
10K
2K06
2K05
10p
3K01
2K04
10p
7
8
9
100R
1
10
11
12
2
3
4
5
6
1K01
FK10
LIGHT_SENSOR_1
LIGHT_SENSOR_1
PC-TV-LED
LED_SEL
IR
LIGHT_SENSOR
IR_1
ITV_IR_SW_RESET
KEYBOARD
PC-TV-LED_1
LED_SEL_1
LED_SEL_1
+3V3STBY_1
IR_1
PC-TV-LED_1
KEYBOARD
HP_ROUT_1
FRONT_Y_CVBS_IN_1
FRONT_Y_CVBS_IN
FRONT_L_IN
FRONT_R_IN
HP_DET_R_DC_1
HP_ROUT
HP_DET_R_DC
HP_LOUT
FRONT_C_IN_1
FRONT_C_IN
FRONT_L_IN_1
+5VSW_1
+5VSW_1
FRONT_R_IN_1
HP_LOUT_1
B17
B17
3139 123 6141.1
G_15351_017.eps
080906

Table of Contents

Related product manuals