EasyManua.ls Logo

Philips LC4.9E - 7.36 SSB: Digital I;O

Philips LC4.9E
162 pages
Print Icon
To Next Page IconTo Next Page
To Next Page IconTo Next Page
To Previous Page IconTo Previous Page
To Previous Page IconTo Previous Page
Loading...
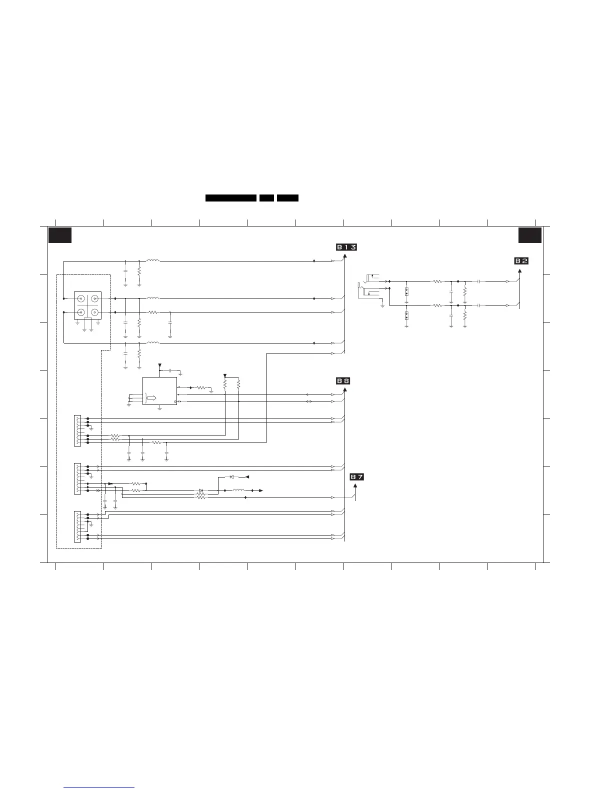
Circuit Diagrams and PWB Layouts
67LC4.9E AB 7.
SSB: Digital I/O
SCL
ADR
0
1
2SDA
WC
DIGITAL IO
PC AUDIO IN
To HERCULES
TO MUX-SYNC INTERFACE
TO SCALER
TO SCALER
RES
RES
RES
DVI INPUT
RGB/COMPONENT VIDEO
INPUT
5V
5V
5V
0V
DVI CONNECTOR
S002 B8
FF02 E1
FF03 E1
FF04 E1
FF05 E1
FF06 E1
FF07 F1
FF08 F1
FF09 F1
FF10 F1
FF11 G1
FF12 G1
FF13 G1
IF00 D3
IF01 F2
IF02 F4
IF03 F5
IF04 B8
IF05 B8
IF06 F1
IF07 F1
IF08 G1
IF11 A6
IF12 B1
IF13 B1
IF14 B2
IF15 B2
IF17 B6
IF20 C6
IF21 F5
IF22 B9
IF23 B9
S001 B8
2F12 F2
2F13 B9
2F14 B9
2F15 B9
2F16 B9
3F00 A2
3F09 B2
3F10 B3
3F11 C2
3F16 D4
3F17 D4
3F18 D4
3F19 E2
3F20 F2
3F21 F2
3F22 F3
3F23 F3
3F24 B8
3F25 B8
3F26 B9
3F27 B9
3F28 E2
3F29 E2
5F00 A3
5F01 B3
5F02 C3
5F03 F4
6F00 F4
6F01 F3
7F03 D2
FF00 D1
FF01 E1
8910
A
B
C
D
E
F
G
A
B
C
D
E
F
G
1F00-1 D1
1F00-2 E1
1F00-3 F1
1F00-4 B1
1F01 A7
2F00 A2
2F02 B2
2F04 B3
2F05 C2
2F07 C3
2F08 E2
2F09 E2
2F10 E3
2F11 F2
RX2-IN
12345678910
1234567
17
18
19
20
21
22
23
24
16
1F00-3
ROW_C
YKF45-7005
9
10
11
12
13
14
15
31
32
29
30
1F00-2
ROW_B
YKF45-7005
1F00-4
YKF45-7005
C125 C2 26
C327 C4 28
4
5
6
7
8
YKF45-7005
ROW_A
1F00-1
1
2
3
7
8
YKB21-5101A
1F01
1
2
3
4
5
3F29
100R
3F28
100R
IF23
IF20
IF22
IF15
IF17IF14
IF12
IF13
IF11
FF13
IF21
FF12
FF10
FF11
FF09
FF07
FF08
FF06
FF04
FF05
FF03
FF01
FF02
FF00
2F16 2u2
2u22F15
2F05
2F02
2F00
1R0
3F10
3F00
75R
3F09
75R
75R
3F11
100p
2F04
5F02
5F00
5F01
2F10
100p
1R03F19
IF00
1K0
3F23
IF08
IF03
IF02
IF06
IF01
3F21
IF07
1K0
2F11
DDC_5V
330p 330p
2F12
10K
3F18
330p
2F08
330p
2F09
3F17
10K
10K
3F16
5F03
DDC_5V
+5VSWI
100R
3F20
BAS316
6F01
DVI_5V
6F00
BAS316
10K
3F22
DDC_5V
6
5
8
4
7
100n
2F07
M24C02-WMN6
(256x8)
Φ
EEPROM
7F03
1
2
3
IF04
IF05
15K
3F27
15K
3F26
180p
2F14
10K
180p
2F13
3F24
3F25 10K
S002
S001
HOT_PLUG
V_PC
H_PC
AudioIN2L
AudioIN2R
RX2+IN
RX1-IN
RX1+IN
RX0-IN
RX0+IN
RXC+IN
RXC-IN
BINA|Pb
GINA|YINA
RINA|Pr
SDA_DVI
SCL_DVI
B14 B14
3139 123 6093.1
F_15430_014.eps
140405

Table of Contents

Related product manuals