EasyManua.ls Logo

Philips LC4.9E - Page 90

Philips LC4.9E
162 pages
Print Icon
To Next Page IconTo Next Page
To Next Page IconTo Next Page
To Previous Page IconTo Previous Page
To Previous Page IconTo Previous Page
Loading...
90LC4.9E AB 7.
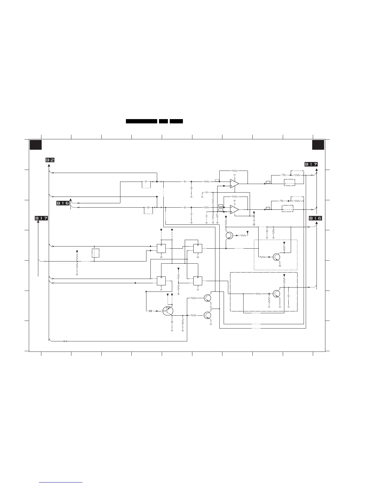
Circuit Diagrams and PWB Layouts
SSB: Audio Processing
AUDIO PROCESSING
FROM HERCULES
**
**
RES
3.2 TO 4.3V
3V3
ITV ONLY
RES
RES
RES
PDTA143ET
RESERVED FOR UFD
RESERVED FOR UFD
RES
RES
RES
RES
RES
RES
RES
RES
RES
RES
2V6
2V6
2V6
5V3
2V6
2V6
2V6
5V3
3V4
3V2
5V2
0V
5V
0V
0V
I606 D4
I607 D4
I608 B5
I610 C5
I611 D7
I612 D7
I613 E4
I614 E4
I615 F4
I616 F8
I617 F5
I618 B6
I619 D8
4612 C5
4613 D2
4614 G8
4615 G8
4616 D4
4617 D5
4618 B4
4619 C4
4620 F5
4621 F5
6601 F4
7601-1 B7
7601-2 C7
7602-1 D4
7602-2 D5
7602-3 E5
7602-4 E6
7603 E8
7604 D8
7605 F4
7606-1 F6
7606-2 F6
7607 D7
F601 B4
F602 B4
F603 B6
F604 C6
F605 C6
I602 B8
I603 C8
I604 B9
I605 B9
3604 B6
3605 B7
3609 C6
3610 C6
3611 C6
3612 B7
3615 D7
3616 E9
3617 D9
3618 D8
3619 D8
3620 F8
3621 F
8
3623 F5
3625 C7
3626 D2
3627 E2
3628 E5
3629 E5
3630 F6
3631 F6
3632 B9
3633 B9
4601 D2
4602 C8
4603 F8
4604 B9
4605 C9
4606 D7
4609 B9
4610 B9
4611 B4
7 8 9
A
B
C
D
E
F
G
A
B
C
D
E
F
G
2603 B5
2604 B6
2605 B6
2608 C5
2609 C6
2610 C6
2611 C6
2612 F9
2613 C8
2614 C8
2615 B9
2616 B4
2617 C4
2618 B8
2619 F5
123 45678 9
123 456
47u
2619
+5V
4606
4621
4619
4620
4618
4617
+3V3STBY
4616
4614
4615
4613
4611
4612
4610
39R
3633
4609
3632
39R
3628
+5V
470R
3629
3631
3630
470R
22K
+5VSW
10K
3627
3626
I619
I618
I616
6601
BZX384-C3V3
I617
I614
I615
I612
I613
I611
I608
I610
4603
3625
3K3
4601
+5VSW
100n
2614
+5VSW
BC847BS
7606-2
7606-1
BC847BS
3623
47K
7605
+3V3SW
3615
10K
16V
2611
100
u
22K
3618
2613
1u0
10V
10V
3620
1u0
2612
4602
10K
+5VSW
7607
BC847BW
470p
2609
470p
2604
3621
1
8 4
TS482IDT
7601-1
3
2
5
6
7
8 4
F603
TS482IDT
7601-2
F605
F604
2616
2u2
2617
2u2
+3V3STBY
BC847BW
7604
10K
3619
3617
1K0
+3V3STBY
BC847BW
7603
3616
1K0
I607
I604
I606
I605
I603
F601
I602
F602
100K
3611
1u0
2610
2605
1u0
3605 22K
3604
22K
3609
22K
100K
3610
3612 22K
74HC08PW
12
13
7
14
11
+3V3SW
4
5
7
14
6
7602-4
8
74HC0
8PW
7602-2
7602-3
9
10
7
14
1
2
7
14
3
74HC08PW
2608
7602-1
74HC08PW
1u0
1u0
2603
4604
2615
470u 16V
4605
470u
2618
16V
OUT_MUTE
HPIC_RIN
EXT_MUTE
POR_AUDIO
SOUND_ENABLE_1
AUDIO-L
AUDIO-R
POWER_DOWN
SOUND_ENABLE
HP_LOUT
HP_ROUT
HPIC_ROUT
HPIC_LOUT
HP_DET_R_DC
HPIC_LIN
AUDOUTLSL
AUDOUTLSR
B5 B5
3139 123 6141.1
G_15351_005.eps
080906

Table of Contents

Related product manuals