EasyManua.ls Logo

Pit Boss 10697 - Electrical Wire Diagram

Pit Boss 10697
90 pages
Print Icon
To Next Page IconTo Next Page
To Next Page IconTo Next Page
To Previous Page IconTo Previous Page
To Previous Page IconTo Previous Page
Loading...
ENGLISH
22
FUEL INPUT ATING:
05 / 11 /
INDEX
  
  
  
  
  
  
  
  
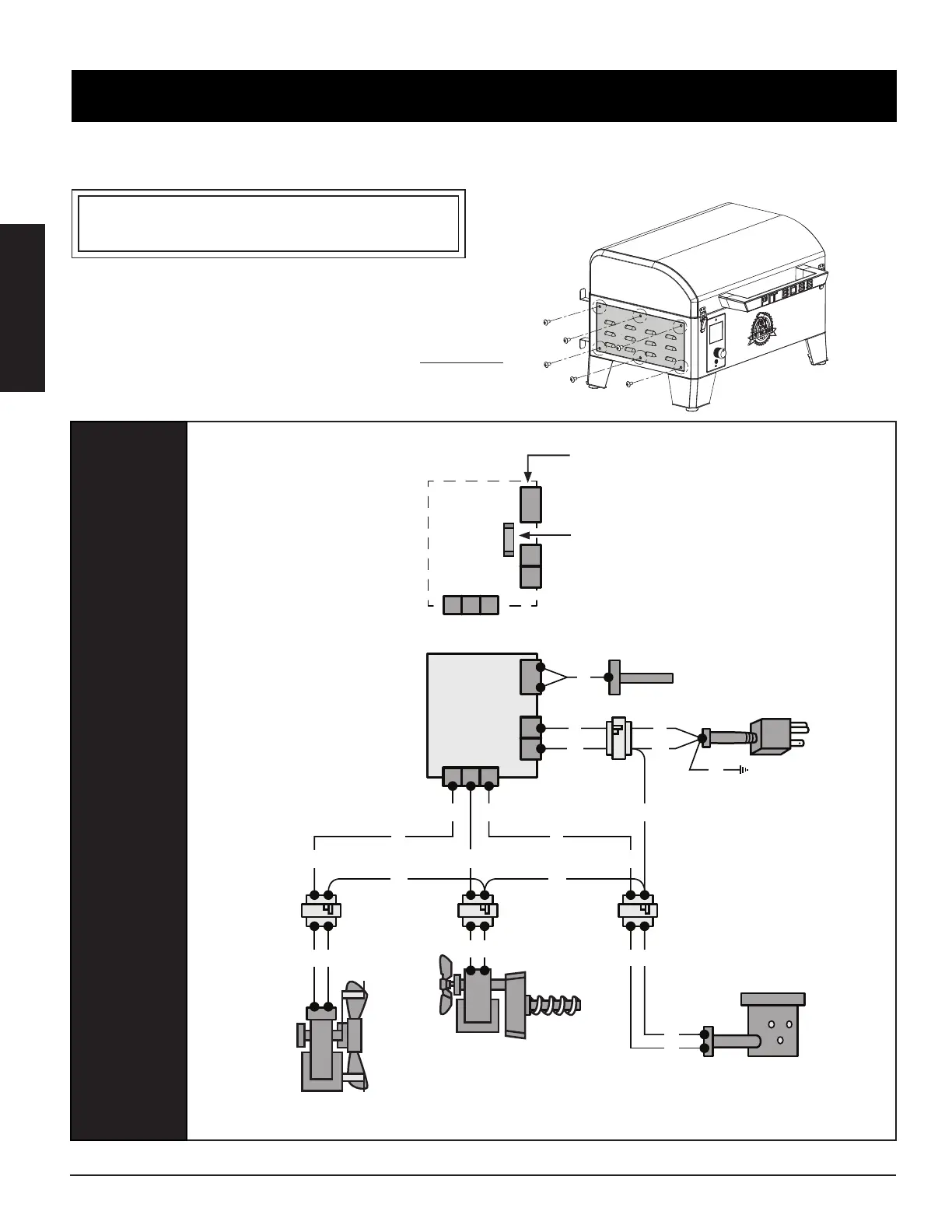
The Digital Control Board system is an intricate and valuable piece of technology. For protection from power surges and electrical
shorts, consult the wire diagram below to ensure your power source is sufficient for the operation of the unit.
PB – ELECTRIC REQUIREMENTS
110-120V, 60HZ, 220W, 3-PRONG GROUNDED PLUG
: Electrical components, passed by product safety testing and certification services, comply
with a testing tolerance of ± 5-10 percent.
P
P
G
Y
Y
Y P
K
S
W
K
W
G
W
W
W
G G
WW
W
W
Y Y
IGNITER ASSEMBLY /
HD CARTRIDGE HEATER
200, 120, 26 
0375”  5000”
BURN POT
IGNITER
DRAFT FAN
120, 50/60,
01 , 1 
GROUNDED
POWER CORD
1, 105°/221°,
183 
AUGER MOTOR
& FEED SYSTEM
120, 50/60, 022 ,
2  
GROUND
GRILL PROBE
R
R R
GRILL PROBE
CONNECTORS
FAST-BLOW FUSE
5 
DIGITAL CONTROL BOARD
LOCATE AND REMOVE
THE SIX SCREWS
OF ACCESS PANEL ON
LEFT SIDE OF UNIT

Table of Contents

Related product manuals