EasyManua.ls Logo

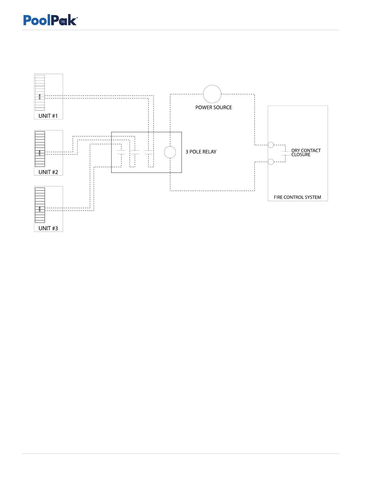
PoolPak ComPak AW Series - Fire Control System Connection; Figure 6-4. Fire Control System Connection

PoolPak ComPak AW Series
92 pages
Print Icon
To Next Page IconTo Next Page
To Next Page IconTo Next Page
To Previous Page IconTo Previous Page
To Previous Page IconTo Previous Page
Loading...
www.poolpak.com | 800-959-772574 | ComPak
®
Series - Installation, Operation and Maintenance
Fire Control System Connection
Figure 6-4. Fire Control System Connection

Table of Contents

Related product manuals