EasyManua.ls Logo

Potterton Paramount two - Technical Data; Dimensions and connections PARAMOUNT two 30;40

Potterton Paramount two
80 pages
Print Icon
To Next Page IconTo Next Page
To Next Page IconTo Next Page
To Previous Page IconTo Previous Page
To Previous Page IconTo Previous Page
Loading...
Technical Data
120-393 632.4 04.08 Fh
PARAMOUNT two 30 - 115 kW 9
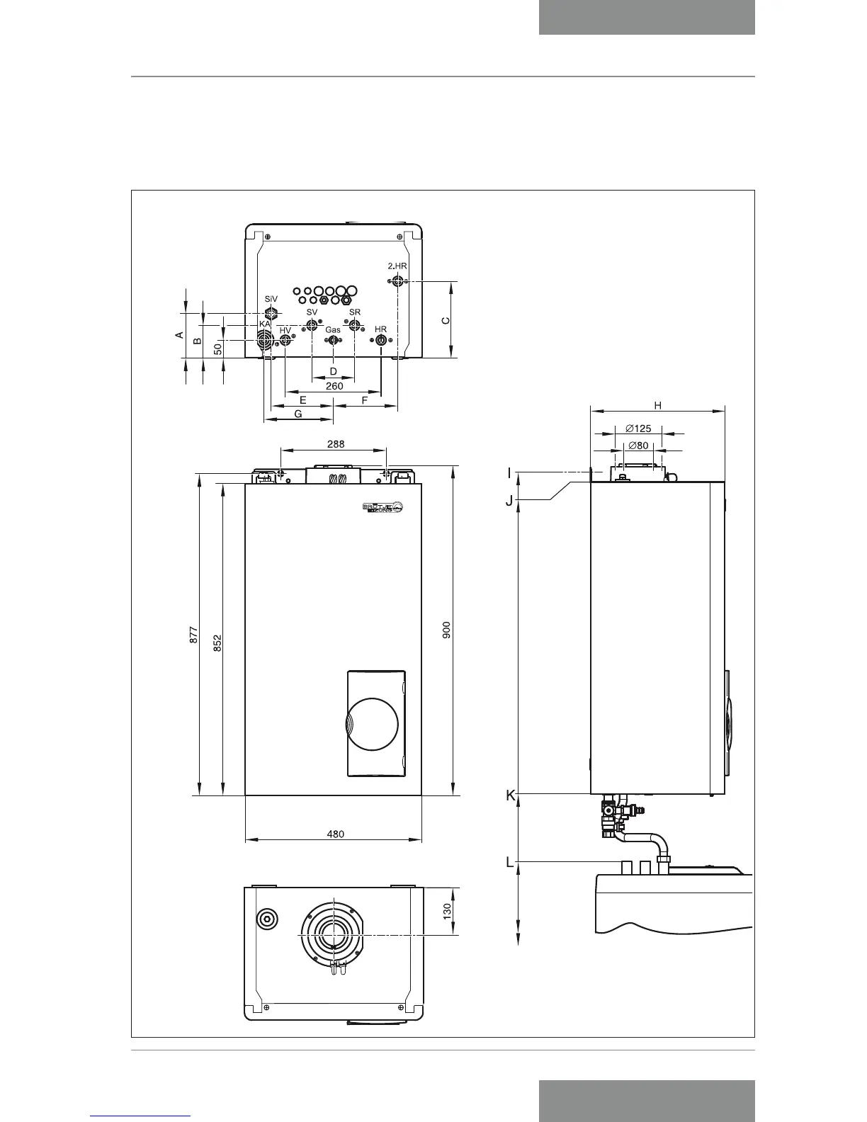
3. Technical Data
3.1 Dimensions and connections PARAMOUNT two 30/40
Fig. 1: Dimensions and connections PARAMOUNT two 30/40

Table of Contents

Related product manuals