EasyManua.ls Logo

PR electronics 5114 - Block Diagram

PR electronics 5114
Print Icon
To Next Page IconTo Next Page
To Next Page IconTo Next Page
To Previous Page IconTo Previous Page
To Previous Page IconTo Previous Page
Loading...
31
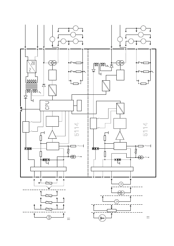
BLOCK DIAGRAM
5114
11
12
13
500
50
DP1
V +
GND.
gnd.
MUX
VV
A
A
CPU
EEPROM
A / D
PGA
21
33
31
14
I +
A
CH 1
CH 2
mA
Vreg.
+
-
V
+
-
+
-
V
-
+
T
PTC
50 k
21
22
23
500
50
DP2
I +
V +
VV
A
A
A
21
24
JP 1
2
0,2 mA
5114
+ V
43
44
42
41
*
+
-
+
-
4
3
2
mV
5 M
1
1
2
JP 2
10
+ V
JP 4
MUX
A / D
PGA
Vreg.
PTC
50 k
JP 3
2
0,2 mA
5 M
1
1
2
10
4...20 mA
4...20 mA
D / A
D / A
51
54
53
52
Input +
Input +,
> 2.5 V
Channel 2
Channel 1
mV
TC
Front comm.
Supply
24...230 VAC &
24...250 VDC
2.5 V
2.5 V
Spec.
Output
V
Spec.
Output
V
RTD and lin. R
Conn. wire
2-wire
transm.
3-wire
potm.
Loop supply / Vref.
Input gnd.
I + V
Out
I + V
Out
I
Out
I
Out
V
Out
V
Out
2-wire output sup. +
2-wire output sup. +
2-wire output sup. -
2-wire output sup. -
Supply
Loop sup.
> 17.1 V
Loop sup.
> 17.1 V
Analogue
Switch
Analogue
Switch
* Accessories: 5910 CJC connector CH 1, 5913 CJC connector CH 2.
Channel 1 shown as a
temperature input:
!!
If channel 2, use
terminal no. 54...51
!!
If channel 1, use
terminal no. 44...41
Channel 2 shown as a
current / voltage input:
V <=
2.5
V >
2.5
Ex barrier, only 5114BEx barrier, only 5114B

Related product manuals