EasyManua.ls Logo

Prochem BLAZER PLUS - Vacuum System

Prochem BLAZER PLUS
104 pages
Print Icon
To Next Page IconTo Next Page
To Next Page IconTo Next Page
To Previous Page IconTo Previous Page
To Previous Page IconTo Previous Page
Loading...
OPERATION
BLAZER 980073 09/16/02
3-9
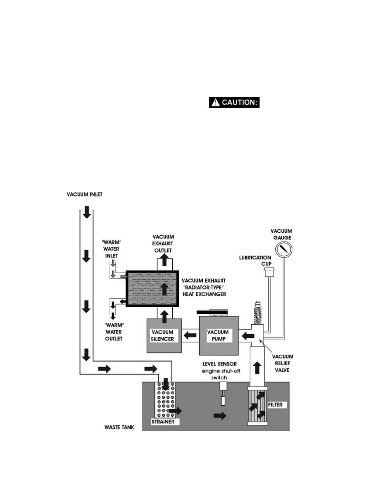
VACUUM SYSTEM
Vacuum flow is initiated by the vacuum pump, with
air and water being drawn into the vacuum inlet at
the front of the console.
The mixture then flows through a strainer basket into
the waste tank. Air exits the waste tank through a
100-mesh filter, and then flows into the vacuum
pump. A vacuum pump relief valve has been
provided for vacuum pump protection.
The air is discharged from the vacuum pump
through the stage one heat exchanger where the
heated vacuum exhaust blows across a
radiator-type heat exchanger before discharging into
the atmosphere.
A level sensor switch located near the top of the
waste tank will shut the unit down before the waste
tank reaches its full capacity. This protects the
vacuum pump from water damage.
Use of a DEFOAMER will help prevent damage to
the unit by a build-up of foam in the waste tank,
which may be caused by some chemicals (foam
build-up will not activate float switches).

Table of Contents

Related product manuals