EasyManua.ls Logo

ProFusion HA24-75E - Page 7

ProFusion HA24-75E
16 pages
Print Icon
To Next Page IconTo Next Page
To Next Page IconTo Next Page
To Previous Page IconTo Previous Page
To Previous Page IconTo Previous Page
Loading...
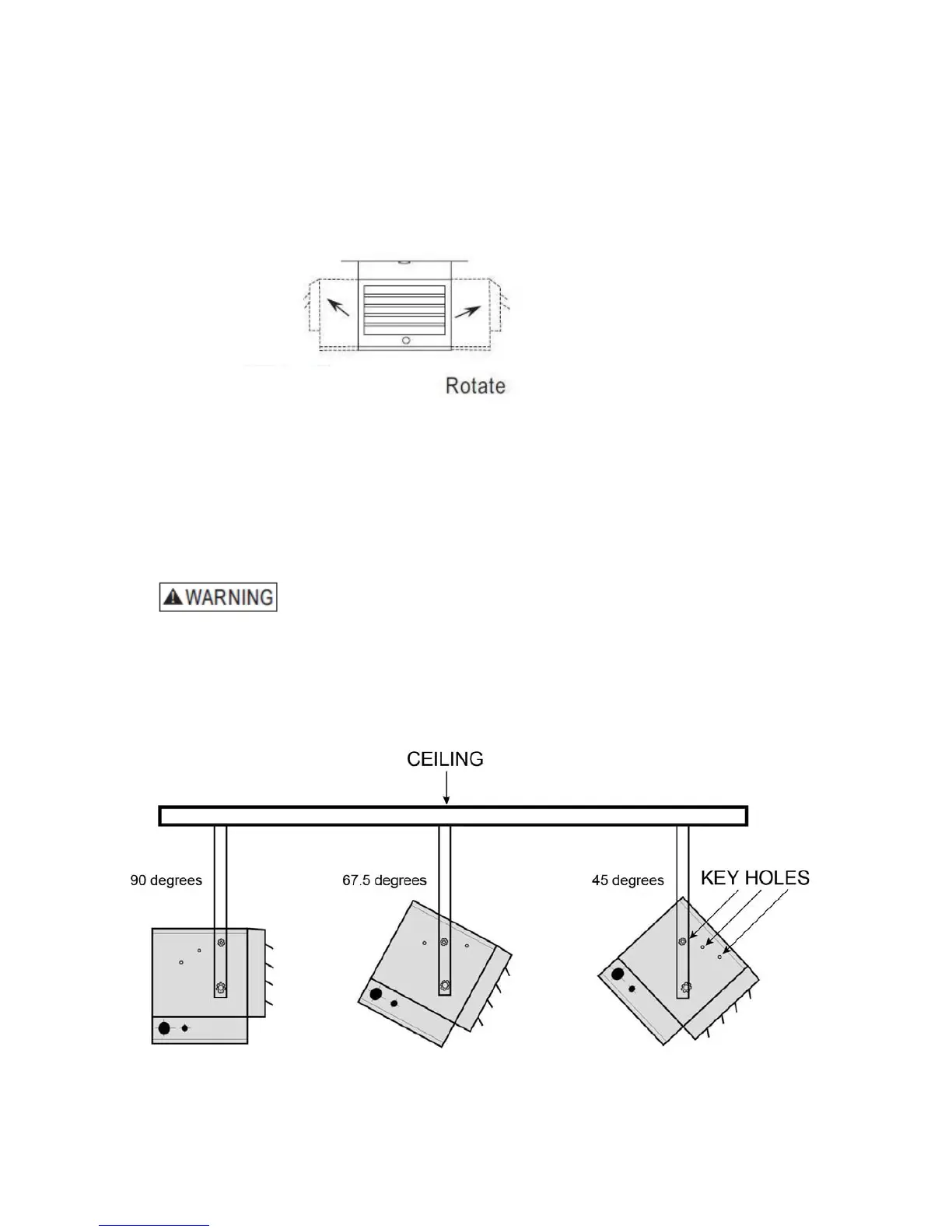
2. To tilt the unit vertically, loosen the bracket screws (see figure 5).
NOTE: For the heater to be tilted vertically, it must be mounted in bottom keyhole slots of
mounting brackets to maintain adequate clearance and prevent possible overheating.
1. Adjust louvers to the desired position.
NOTE: The louvers are designed so they cannot be completely closed. Do not attempt to
defeat this feature; damage to the unit can result.
To prevent possible electric shock, disconnect power to the heater at the
main service box before attempting to adjust the heat output of this unit.
MULTIPLE VERTICAL ANGLES
7

Related product manuals