EasyManua.ls Logo

ProFusion HA24-75E - Page 9

ProFusion HA24-75E
16 pages
Print Icon
To Next Page IconTo Next Page
To Next Page IconTo Next Page
To Previous Page IconTo Previous Page
To Previous Page IconTo Previous Page
Loading...
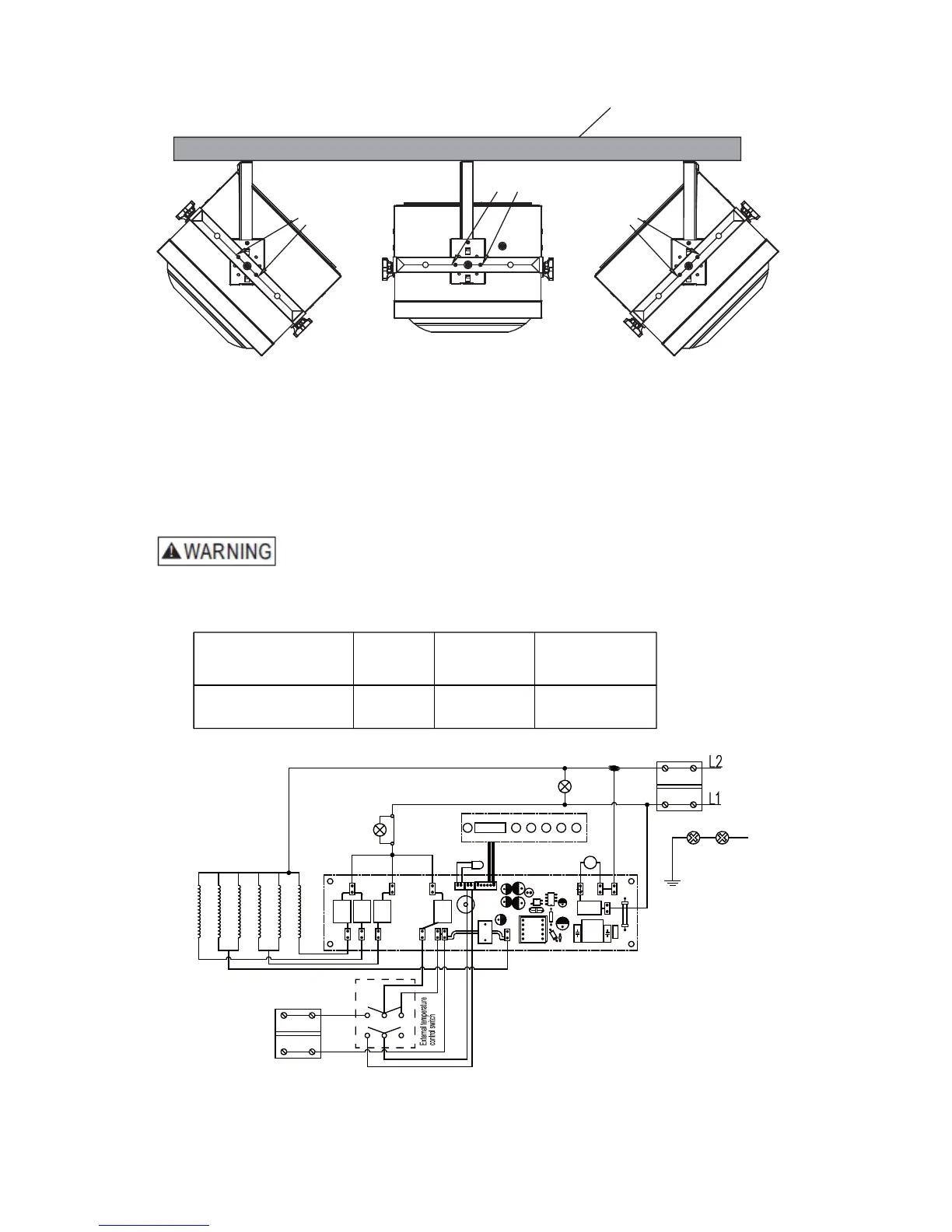
45° 45°
horizontal
WALL
NOTE: The louvers are designed so they cannot be completely closed. Do not attempt to
defeat this feature; damage to the unit can result.
To prevent possible electric shock, disconnect power to the heater at the
main service box before attempting to adjust the heat output of this unit.
9
Figure 5E
5.There are 3 angels to be selected by two screw
screw
screw
screw
HEATER
RATING&VOLTAGE
HEATER
AMPS
MAX.FUSE
SIZE
MIN.WIRE SIZE
75°C COPPER
5000W@240W 20.9 30 #12
HA24-50E 5000W Principle diagram of electrical apparatus
IN3
SW
NTC
IN2
PELAY4
DLSPLAY
LED
OUT4
SW-OUT
SW-OUTSW-IN
OUT3
OUT2
OUT1
LAMP
LAMP-N
PAN-N
PELAY5
L-IN
PELAY3PELAY2PELAY1
IN1
Power light
Motor
240v 60Hz
Caution light
Over heat
AC240V/60Hz
Terminal station
Terminal station
1000W Element
750W Element
750W Element
750W Element
750W Element
1000W Element
(E)
D

Related product manuals