EasyManua.ls Logo

ProMinent Dulcodes M - Page 44

ProMinent Dulcodes M
47 pages
Print Icon
To Next Page IconTo Next Page
To Next Page IconTo Next Page
To Previous Page IconTo Previous Page
To Previous Page IconTo Previous Page
Loading...
ProMinent
®
Page 44
A
B
A
C
D
130
153
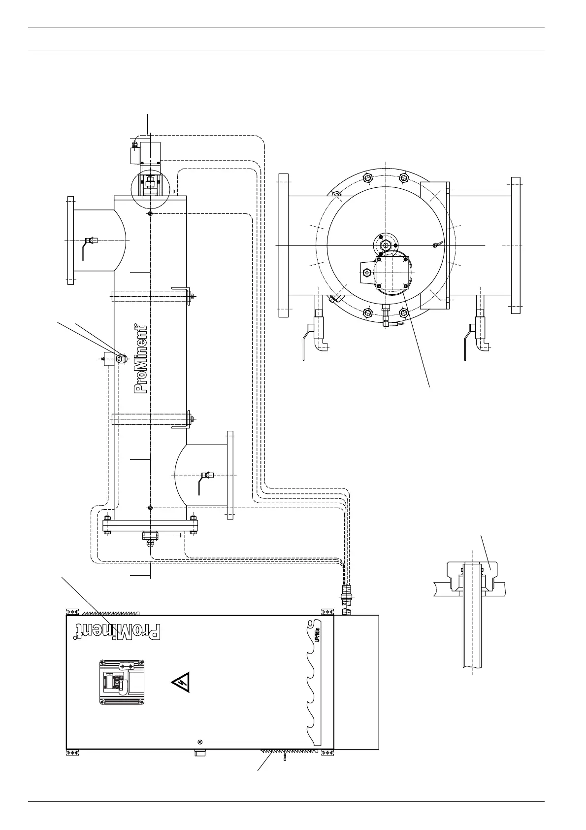
Side view A
X1-1/2
X1-3/4
X4-1/2
X4-3/4
M1:8
307
880
880
Detail Z:
delivery condition:
Z
M1:4
Assembly part
e-prom
R
DULCOMETER
UV
STOP
START
R
R
FW-01.01.01
1009027
Spare parts list

Table of Contents

Related product manuals