EasyManua.ls Logo

PV Powered PVP4800 - Appendix C - Cabinet Dimensions; Schematics for Inverter-Only; Figure C-1 Side and Front Views of the PVP1100, PVP2000, PVP2500 PVP2800, PVP3000 and PVP3500 Inverter-Only Cabinet

Default Icon
84 pages
Print Icon
To Next Page IconTo Next Page
To Next Page IconTo Next Page
To Previous Page IconTo Previous Page
To Previous Page IconTo Previous Page
Loading...
51
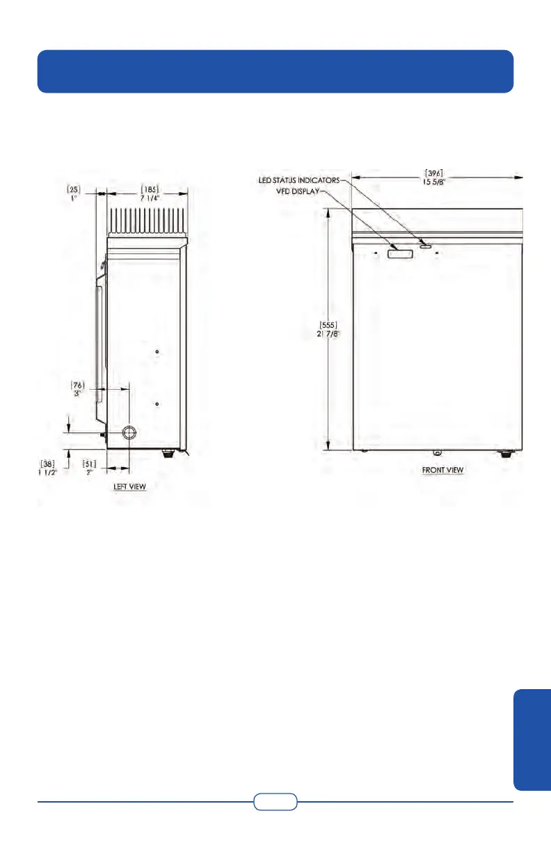
C.1 Schematics for Inverter-only
Figure C-1 Side and Front Views of the PVP1100, PVP2000, PVP2500, PVP2800,
PVP3000 and PVP3500 Inverter-only Cabinet
Appendix C - Cabinet Dimensions
APPENDIX C

Table of Contents

Related product manuals