EasyManua.ls Logo

PV Powered PVP4800 - PVP2800, PVP3000 and PVP3500 Inverter with Integrated AC;DC Disconnect Cabinet

Default Icon
84 pages
Print Icon
To Next Page IconTo Next Page
To Next Page IconTo Next Page
To Previous Page IconTo Previous Page
To Previous Page IconTo Previous Page
Loading...
56
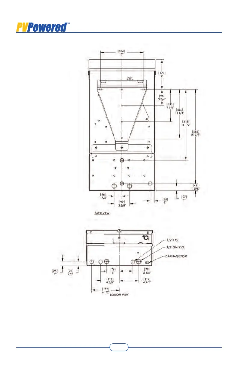
Figure C-6 Back and Bottom Views of the PVP1100, PVP2000, PVP2500, PVP2800,
PVP3000 and PVP3500 Inverter with Integrated AC/DC Disconnect Cabinet

Table of Contents

Related product manuals