EasyManua.ls Logo

Quincy Compressor QED-600 - Electrical Connections

Quincy Compressor QED-600
66 pages
Print Icon
To Next Page IconTo Next Page
To Next Page IconTo Next Page
To Previous Page IconTo Previous Page
To Previous Page IconTo Previous Page
Loading...
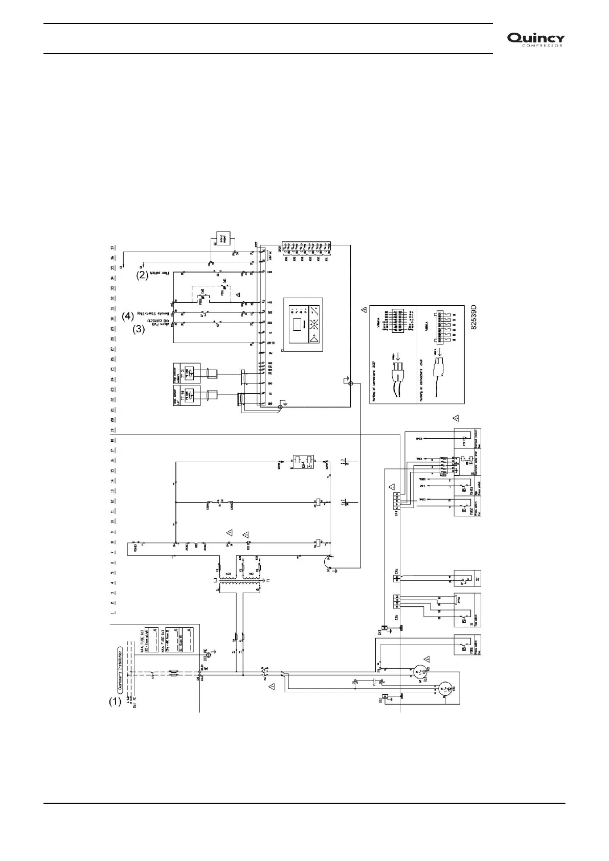
4.3 Electrical connections
Electrical connections
1. Provide an isolating switch nearby the dryer.
2. Check that the electric cables and wires inside the electric cabinet are clamped tight to their terminals.
3. Check the fuses and the setting of the overload relay. See section Settings of fuses.
4. On single-phase units: connect the power supply cables to terminals L1, L2 of terminal strip (1X0).
5. On three-phase units: connect the power supply cables to terminals L1, L2, L3 of terminal strip (1X0).
6. Connect the earth conductor to earth bolt (1X3).
Electrical diagram for single-phase units
Instruction book
2920 7103 90 43

Table of Contents

Related product manuals