EasyManua.ls Logo

Raypak 156 - Wiring Diagrams; Analog Model Wiring Diagram; Digital Model Wiring Diagram

Raypak 156
40 pages
Print Icon
To Next Page IconTo Next Page
To Next Page IconTo Next Page
To Previous Page IconTo Previous Page
To Previous Page IconTo Previous Page
Loading...
24
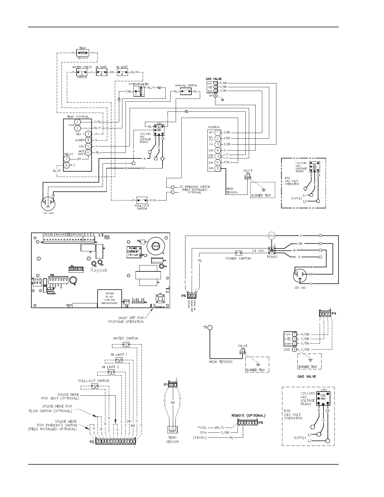
Wiring Diagrams
Fig. 19: Wiring Diagram—Analog Models
Fig. 20: Wiring Diagram—Digital Models

Other manuals for Raypak 156

Related product manuals