EasyManua.ls Logo

Raypak CROSSWIND-65-O - Specifications and Dimensions

Raypak CROSSWIND-65-O
28 pages
Print Icon
To Next Page IconTo Next Page
To Next Page IconTo Next Page
To Previous Page IconTo Previous Page
To Previous Page IconTo Previous Page
Loading...
10
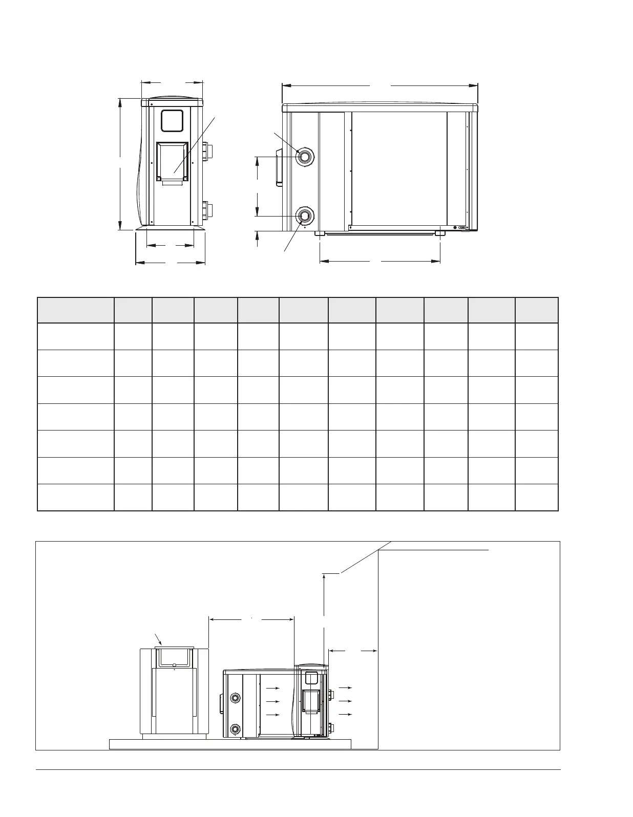
Figure 8. Dimensions
F10755
E
F
G
B
C
H
A
D
SERIAL NUMBER
LABEL LOCATED
HERE
INLET
OUTLET
GAS
HEATER
3 FT
(0.9 m)
MIN
AIR
FLOW
IN
AIR
FLOW
OUT
60" (1.52 m) MIN
12"
(0.3 m)
MIN
F10771
Specications and Dimensions
Models Part No A B C D E F G H
Weight
lb (kg)
CROSSWIND-30-I
079714
12.40
(315)
23.22
(312)
12.28
(312)
13.39
(340)
39.02
(991)
11.42
(290)
2.91
(74)
25.87
(657)
103.62
(47)
CROSSWIND-40-I
079715
12.40
(315)
23.22
(312)
12.28
(312)
13.39
(340)
39.02
(991)
11.42
(290)
2.91
(74)
25.87
(657)
105.82
(48)
CROSSWIND-50-I
079716
12.40
(315)
23.22
(312)
12.28
(312)
13.39
(340)
39.02
(991)
12.99
(330)
2.91
(74)
25.87
(657)
114.64
(52)
CROSSWIND-65-I
079717
15.55
(395)
23.22
(312)
15.35
(390)
16.54
(420)
39.02
(991)
14.17
(360)
2.91
(74)
25.87
(657)
136.69
(62)
CROSSWIND-40-O
079718
12.40
(315)
23.23
(590)
12.3
(312)
13.39
(340)
39.02
(991)
11.02
(280
3.03
(77)
25.87
(657)
125.66
(57)
CROSSWIND-50-O
079719
15.55
(395)
24.02
(610)
15.35
(390)
16.54
(420)
39.02
(991)
12.20
(310)
3.03
(77)
25.87
(657)
154.32
(70)
CROSSWIND-65-O
079720
15.55
(395)
23.23
(590)
15.24
(387)
16.54
(420)
39.02
(991)
14.96
(380)
3.03
(77)
29.80
(757)
171.96
(78)
Figure 9. Installation Clearances
Table C. Basic Product Data - in. (mm)
6100.64_Crosswind.indd 10 11/26/2019 4:16:43 PM

Related product manuals