EasyManua.ls Logo

Riello UPS MASTER HP - Page 4

Riello UPS MASTER HP
24 pages
Print Icon
To Next Page IconTo Next Page
To Next Page IconTo Next Page
To Previous Page IconTo Previous Page
To Previous Page IconTo Previous Page
Loading...


0ML190480RUENUC page4/24

This manual is intended to describe all steps for installing the battery cabinet, starting from the empty
cabinet as it is presented without battery blocks installed.
This manual cover the versions.
BBX 1900 480V UL L6 3U : 55 Ah Rated Voltage 480Vdc (240 cells 40x 12Vdc blocks) OCP 200
A (Circuit breacker provided ). Suitable for up to 80kVA MHT UPS
BBX 1900 480V UL L8 3U : 100 Ah Rated Voltage 480Vdc (240 cells 40x 12Vdc blocks) OCP 300
A (circuit breaker provided). Suitable up to 160kVA MHT UPS, up to
500kVA with 2 or more strings
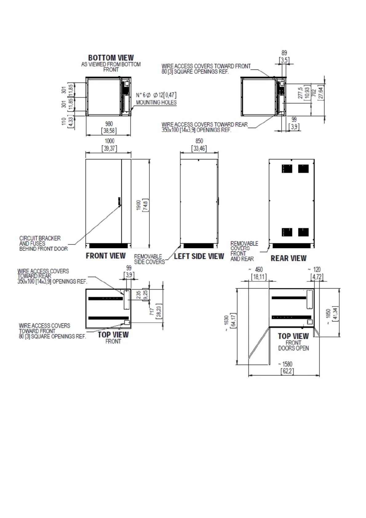
Fig. 1 - BBX battery cabinet external dimensions

Related product manuals