EasyManua.ls Logo

Riello 20047690 - Supply Cables and External Connections Passage

Riello 20047690
56 pages
Print Icon
To Next Page IconTo Next Page
To Next Page IconTo Next Page
To Previous Page IconTo Previous Page
To Previous Page IconTo Previous Page
Loading...
20051011
24
GB
Installation
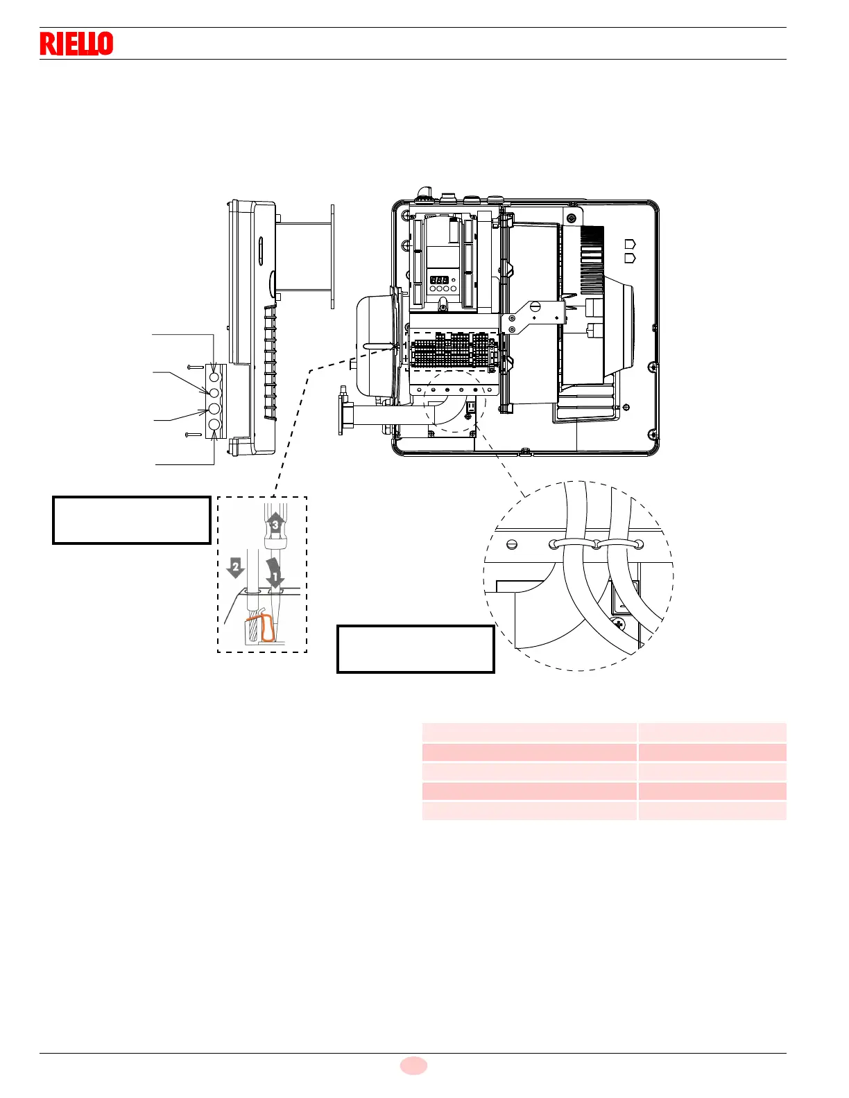
4.9.1 Supply cables and external connections
passage
All the cables to be connected to the burner must be threaded
through cable grommets. The use of the cable grommets can take
various forms by way of example we indicate the following mode.
Key (Fig. 17)
1 Single phase power supply, thermostat/pressure switch TL
2 Thermostat/pressure switch
3 Consents/safety
4 Available
Cable lengths
4
3
2
1
Fig. 17
20050586
Possibility of fixing
the electrical cables
System connection
terminal streep
S8685
Mains supply line Max. 100 m (100 pF/m)
Load controller X5-03 Max. 30 m (100 pF/m)
Safety Loop Max. 30 m (100 pF/m)
Remote reset (lay separate cable) Max. 30 m (100 pF/m)
Other lines Max. 30 m (100 pF/m)

Table of Contents

Related product manuals