EasyManua.ls Logo

Riello BS2D - Descripción del Quemador; Material Suministrado en Dotación

Riello BS2D
84 pages
Print Icon
To Next Page IconTo Next Page
To Next Page IconTo Next Page
To Previous Page IconTo Previous Page
To Previous Page IconTo Previous Page
Loading...
13
20135737
E
Descripción técnica del quemador
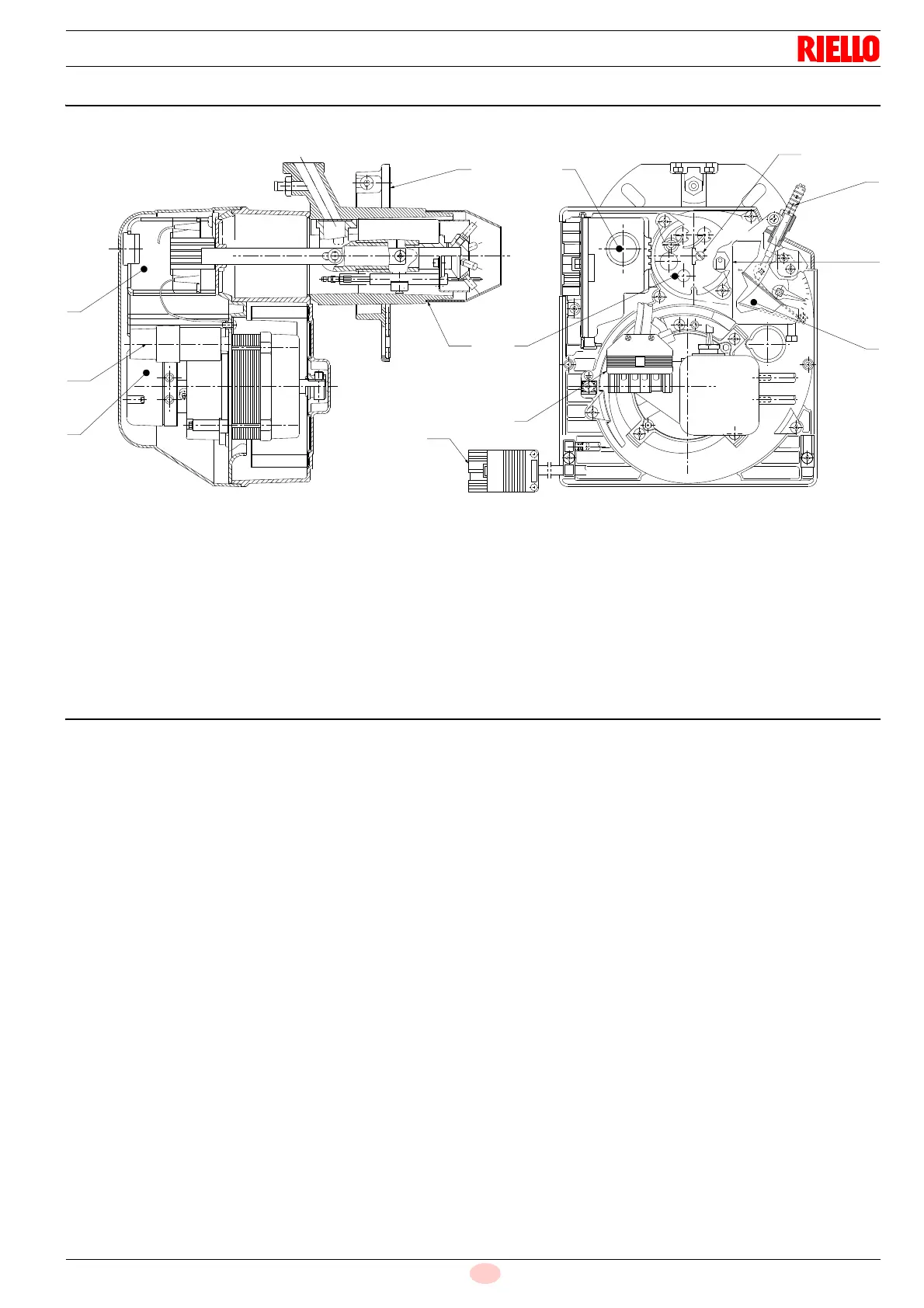
4.9 Descripción del quemador
1 Presostato aire
2 Conector hembra de 6 contac. para conexión de rampa
3 Caja de control con conector hembra de 7 contactos
incorporado
4 Pulsador de desbloqueo con señal de bloqueo
5 Grupo porta-cabezal
6 Toma de presión
7 Bridas con junta aislante
8 Grupo de regulación registro de aire
9 Servomotor registro de aire
10 Conector hembra de 4 contactos para 2º llama
11 Tornillo de regulación del cabezal de combustión
12 Cabezal de combustión
13 Condensador
4.10 Material suministrado en dotación
Brida con junta aislante . . . . . . . . . . . . . . . . . . . . . . . . . . . . N° 1
Tornillos y tuercas para brida de fijación a la caldera . . . . . N° 4
Conector macho de 7 contactos . . . . . . . . . . . . . . . . . . . . . N° 1
Tornillo y tuerca para brida . . . . . . . . . . . . . . . . . . . . . . . . . N° 1
Conector macho de 4 contactos . . . . . . . . . . . . . . . . . . . . . N° 1
Conexión desbloqueo remoto . . . . . . . . . . . . . . . . . . . . . . . N° 1
Instrucciones . . . . . . . . . . . . . . . . . . . . . . . . . . . . . . . . . . . . N° 1
Lista de recambios . . . . . . . . . . . . . . . . . . . . . . . . . . . . . . . N° 1
Kit de desbloqueo a distancia
El quemador está dotado de un kit de desbloqueo remoto (RS)
compuesto de una conexión a la que se puede conectar un botón
hasta una distancia máxima de 20 metros.
Para la instalación, quitar la clavija de protección montada en fá-
brica y colocar la que se entrega con el quemador (véase esque-
ma eléctrico).
0
9
0
9
3
13
1
10
7
12
4
11
8
6
9
5
2
Fig. 5
20135309

Table of Contents

Related product manuals