EasyManua.ls Logo

Riello BS2F-GPL - Collegamenti Elettrici

Riello BS2F-GPL
Print Icon
To Next Page IconTo Next Page
To Next Page IconTo Next Page
To Previous Page IconTo Previous Page
To Previous Page IconTo Previous Page
Loading...
20098824
10
I
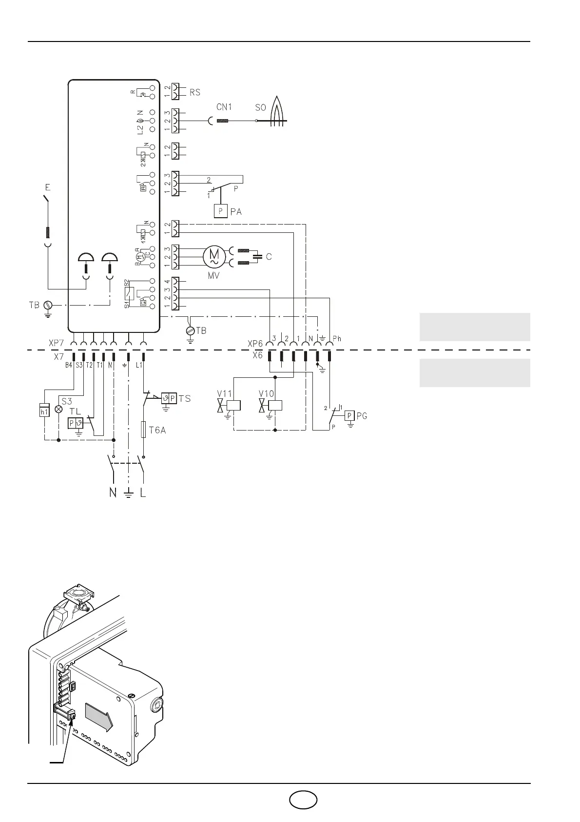
3.6 COLLEGAMENTI ELETTRICI
Interruttore
generale
220/230V ~ 50/60Hz
D4626
ATTENZIONE:
Non scambiare il neutro con la fase, rispettare esattamente lo
schema indicato ed eseguire un buon collegamento di terra.
La sezione dei conduttori deve essere di min. 1 mm
2
. (Salvo diverse
indicazioni di norme e leggi locali).
I collegamenti elettrici eseguiti dall’installatore devono rispettare le
norme vigenti nel paese.
COLLAUDO
Verificare l’arresto del bruciatore aprendo i termostati.
Verificare il blocco del bruciatore in funzionamento aprendo il connettore (CN1)
inserito nel filo rosso della sonda, posto all’esterno dell’apparecchiatura.
APPARECCHIATURA, (vedi fig. 7)
Per estrarre l’apparecchiatura dal bruciatore è necessario:
sconnettere tutti i connettori ad essa collegati, la spina a 7 poli, i cavi di al-
ta tensione ed il filo di terra (TB);
svitare la vite (A) e tirare l’apparecchiatura nel senso della freccia.
Per l’installazione dell’apparecchiatura è necessario:
avvitare la vite (A) con una coppia di serraggio da 1 ÷ 1,2 Nm;
connettere tutti connettori precedentemente scollegati.
NOTE:
I bruciatori sono stati omologati per funzionamento intermittente.
Ciò significa che devono fermarsi almeno 1 volta ogni 24 ore per permettere
all’apparecchiatura elettrica di effettuare un controllo della propria efficienza
all’avviamento. Normalmente l’arresto del bruciatore viene assicurato dal ter-
mostato limite (TL) della caldaia. Se così non fosse, è necessario applicare in
serie a (TL) un interruttore orario che provveda all’arresto del bruciatore al-
meno una volta ogni 24 ore.
LEGENDA
C Condensatore
CN1 Connettore sonda
E Elettrodo
h1 Contaore
MV Motore
PA Pressostato aria
PG Pressostato gas minima
RS Reset remoto
SO Sonda ionizzazione
S3 Spia blocco (230V - 0,5 A max)
T6A Fusibile
TB Terra bruciatore
TL Termostato limite
TS Termostato di sicurezza
V10 Valvola di sicurezza
V11 Valvola di regolazione
X.. Spina
XP.. Presa
MG569
APPARECCHIATURA
A
Fig. 7
A CURA
DELL’INSTALLATORE
ESEGUITO
IN FABBRICA
E9250

Table of Contents

Related product manuals