EasyManua.ls Logo

Rinnai Infinity 20e - Dimensions

Rinnai Infinity 20e
91 pages
Print Icon
To Next Page IconTo Next Page
To Next Page IconTo Next Page
To Previous Page IconTo Previous Page
To Previous Page IconTo Previous Page
Loading...
REU-V1616W/REU-V2018W/REU-V2020W - 8 - Issue 1 - 10/10/03 ©Rinnai
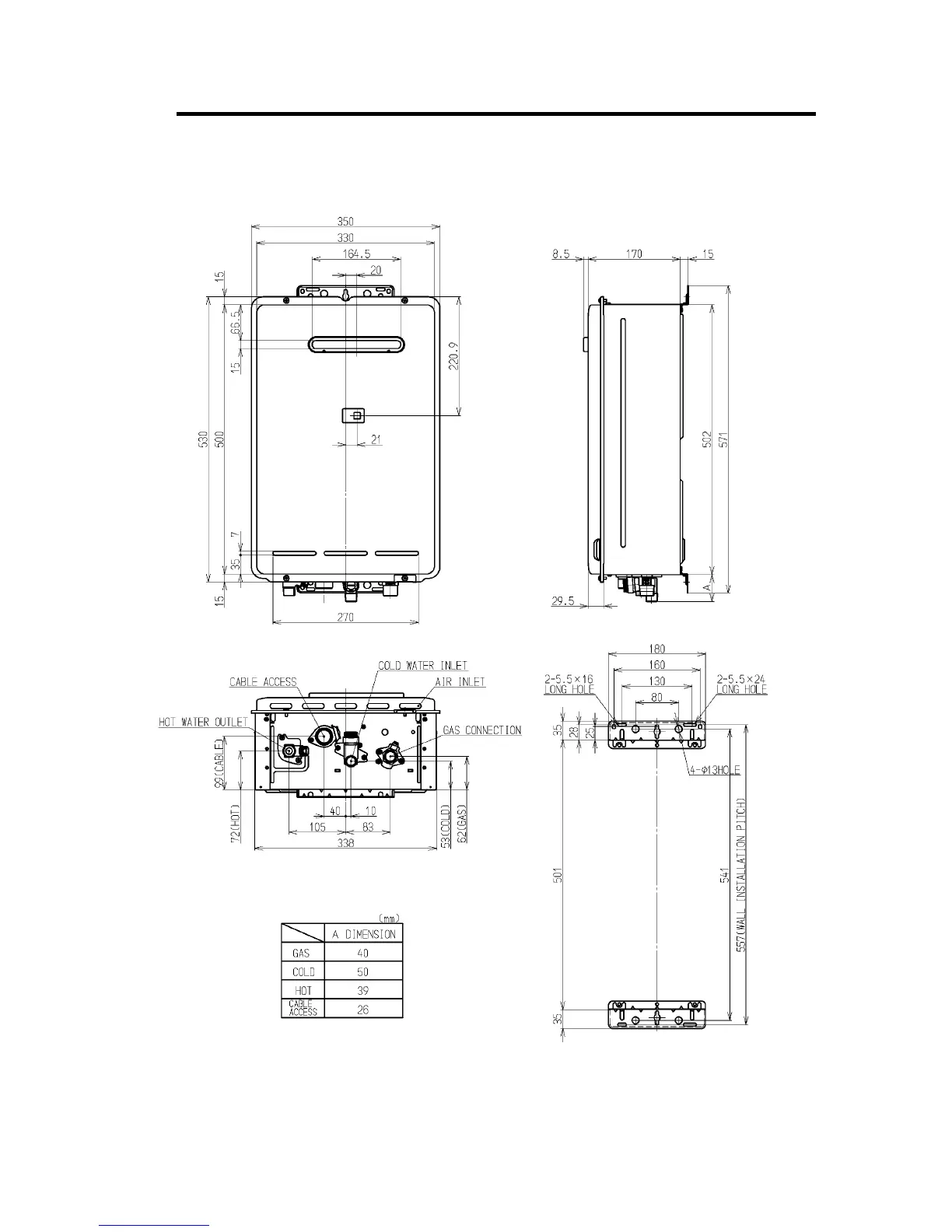
4. Dimensions
16e

Related product manuals