EasyManua.ls Logo

Rish OPTIMA VAF - Case Dimensions and Panel Cut-Out; Wiring Instructions; Auxiliary Power Supply

Rish OPTIMA VAF
26 pages
Print Icon
To Next Page IconTo Next Page
To Next Page IconTo Next Page
To Previous Page IconTo Previous Page
To Previous Page IconTo Previous Page
Loading...
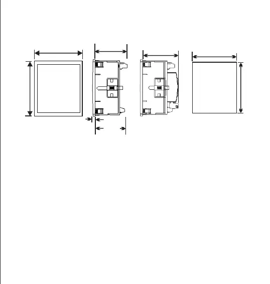
4 mm
42 mm
55 mm
4.2 Case Dimension and Panel Cut Out
Display Area
96 mm
96 mm
62 mm
Limit switch.
With optional
92mm+0.8
Panel Cutout
92mm+0.8
Input connections are made directly to screw-type terminals with indirect wire pressure. Numbering
is clearly marked on the connector. Choice of cable should meet local regulations. Terminal for both
2 2
Current and Voltage inputs will accept upto 4mm (12AWG) solid or 2.5 mm (12AWG) standard
cable.
Note : It is recommended to use wire with lug for connection with meter.
4.3 Wiring
4.4 Auxiliary Supply
VAF it may be powered from the signal should ideally be powered from a dedicated supply, however
source, provided the source remains within the limits of the chosen auxiliary voltage range.
21

Related product manuals