EasyManua.ls Logo

Rockwell Automation Allen-Bradley PowerFlex 750 Series

Rockwell Automation Allen-Bradley PowerFlex 750 Series
68 pages
To Next Page IconTo Next Page
To Next Page IconTo Next Page
To Previous Page IconTo Previous Page
To Previous Page IconTo Previous Page
Loading...
Rockwell Automation Publication PFLEX-AP005A-EN-P - October 2010 21
Drive Selection Considerations Chapter 1
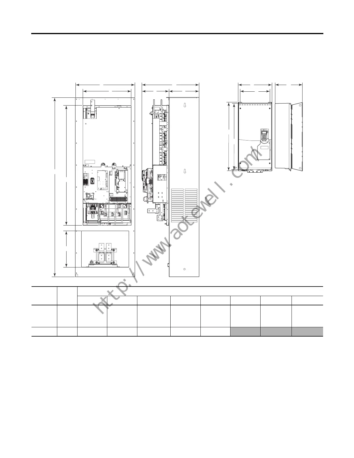
Figure 9 - PowerFlex 700 Frames 8 & 9 (IP00) to PowerFlex 750-Series Frame 7 (IP00)
Dimensions mm (in.)
Drive Frame A B C D E F G H
700 8 & 9 757.7 (29.83) 614.4 (24.19)
599.4 (23.60)
(1)
726.4 (28.60)
(2)
781.8 (30.78)
(3)
2373.9 (93.46)
1524.0 (60.0) 463.8 (18.26) 345.4 (13.6)
(1)
345.4 (13.6)
(2)
400.8 (15.8)
(3)
599.4 (23.6)
(1)
726.4 (28.6)
(2)
781.8 (30.8)
(3)
750-Series 7 430.0 (16.93) 380.0 (14.96) 349.6 (13.76) 881.5 (34.7) 838.0 (33.0)
(1) For PowerFlex 700 drive catalog numbers 20Bx365…20Bx481.
(2) For PowerFlex 700 drive catalog numbers 20Bx535 and 20Bx600.
(3) For PowerFlex 700 drive catalog number 20Bx730.
C
A
B
E
D
TB11
TE
25 AMPERES RMS
MAXIMUM
RISK OF SHOCK
REPLACE AFTER
SERVICING
!
DANGER
DANGER
RISK OF SHOCK
REPLACE AFTER
SERVICING
!
DANGER
TB9
8 AMPERES RMS
MAXIMUM
DC+
V
W
U
R S T DC-DC+
GND
C
A
B
D
HG
E
F
PowerFlex 700 Frames 8 & 9
(IP00, NEMA/UL Type Open)
PowerFlex 750-Series Frame 7
(IP00, NEMA/UL Type Open)
http://www.aotewell.com/

Other manuals for Rockwell Automation Allen-Bradley PowerFlex 750 Series

Related product manuals