EasyManua.ls Logo

Rockwell DeviceNet - 5.3 Example SLC Ladder Logic Program

Default Icon
102 pages
Print Icon
To Next Page IconTo Next Page
To Next Page IconTo Next Page
To Previous Page IconTo Previous Page
To Previous Page IconTo Previous Page
Loading...
Using I/O Messaging
5-3
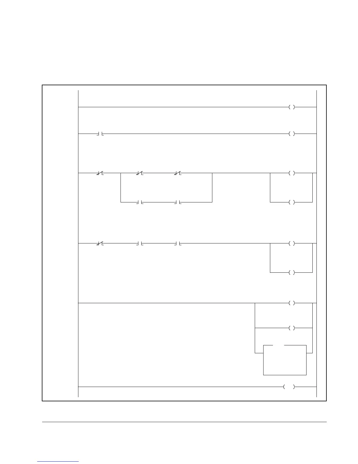
5.3 Example SLC Ladder Logic Program
The example program runs the VSM500 unit in the forward and reverse direction. It
also provides a speed reference. Note that the scanner must be in Slot 1 of the SLC
500 rack for this example.
Figure 5.2 – Example SLC Ladder Logic Program
0000
Enable the 1747-SDN Scanner.
This rung clears a fault if the VSM500 unit is faulted.
VSM500 Faulted Bit
I:1
1747-SDN Run Bit
0001
VSM500 Reset fault
Bit
1747-SDN
1747-SDN 1747-SDN
O:1
O:1
0
1816
1747-SDN 1747-SDN
1616
This rung starts the VSM500 unit running forward when either it is not running or if it is at speed and running in reverse.
VSM500 Faulted Bit
VSM500 At Reference
VSM500 At Reference
VSM500 Net Control
VSM500 Net Ref
VSM500 Speed
Command
I:1
0002
O:1
L
U
1747-SDN
19
VSM500 Running
Reverse
VSM500 Running
Reverse
VSM500 Running
Forward Bit
VSM500 Run
Forward Bit
I:1
1747-SDN
18
I:1
1747-SDN
17
VSM500 Run Reverse
Bit
VSM500 Run Reverse
Bit
VSM500 Run Forward
Bit
O:1
1747-SDN
23
I:1
1747-SDN
19
I:1
1747-SDN 1747-SDN
1716
This rung sends a run reverse command to the VSM500 unit when it is running forward and is at speed.
VSM500 Faulted Bit
I:1
0003
O:1
L
U
1747-SDN
23
VSM500 Running
Forward Bit
I:1
1747-SDN
18
I:1
1747-SDN
16
O:1
1747-SDN
21
This rung sets the net reference and net control bits and sends a speed command of 1800 RPM.
0004
O:1
L
L
0005
END
1747-SDN
22
Mov
Move
Source
Dest
1800
1800<
O:1. 2
1800<
O:1

Table of Contents