EasyManua.ls Logo

Rockwell DeviceNet - Page 49

Default Icon
102 pages
Print Icon
To Next Page IconTo Next Page
To Next Page IconTo Next Page
To Previous Page IconTo Previous Page
To Previous Page IconTo Previous Page
Loading...
Using Explicit Messaging
6-5
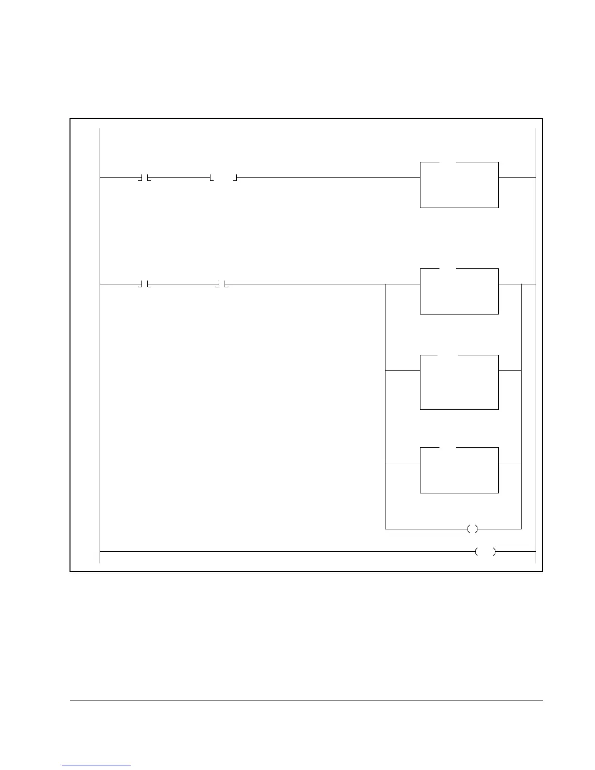
Example Ladder Logic Program
Note that the scanner must be in Slot 1 of the SLC 500 rack for this example.
For more information on explicit messaging, refer to the documentation for your
scanner.
Figure 6.2 – Example SLC Ladder Logic Program
0000
This rung moves the Explicit Message Request data from the SLC500 processor to the 1747-SDN.
This rung moves the response data from the 1747-SDN to the SLC500 processor when it is available.
Then a delete transaction from response queue is sent.
Explicit Msg Request
enable bit
Generate Explicit
Request Only Once.
Copy Request data from
the SLC to the SDN Scanner
N7:0
OSR
0
B3:0
0
0001
0002
U
END
Mov
Move
Source
Dest
260
260<
#N10:0
0<
COP
Copy File
Source
Dest
Length
#N10:0
#M0:1.224
32
Explicit Msg Request
enable bit
Explicit Msg Request
enable bit
Status Word - Explicit
Msg Available
Copy Response data from
SDN Scanner to SLC
Request Command data
this deletes the request
from the response queue
Copy Request data from
the SLC to the SDN Scanner
N7:0
0
N7:0
0
I
:1
15
1747-SDN
COP
Copy File
Source
Dest
Length
#N11:0
#M1:1.224
32
COP
Copy File
Source
Dest
Length
#N10:0
#M0:1.224
32

Table of Contents