EasyManua.ls Logo

Rosemount 2081 pH - Sensor Wiring Details for Use with 2081 Ph

Rosemount 2081 pH
39 pages
Print Icon
To Next Page IconTo Next Page
To Next Page IconTo Next Page
To Previous Page IconTo Previous Page
To Previous Page IconTo Previous Page
Loading...
5
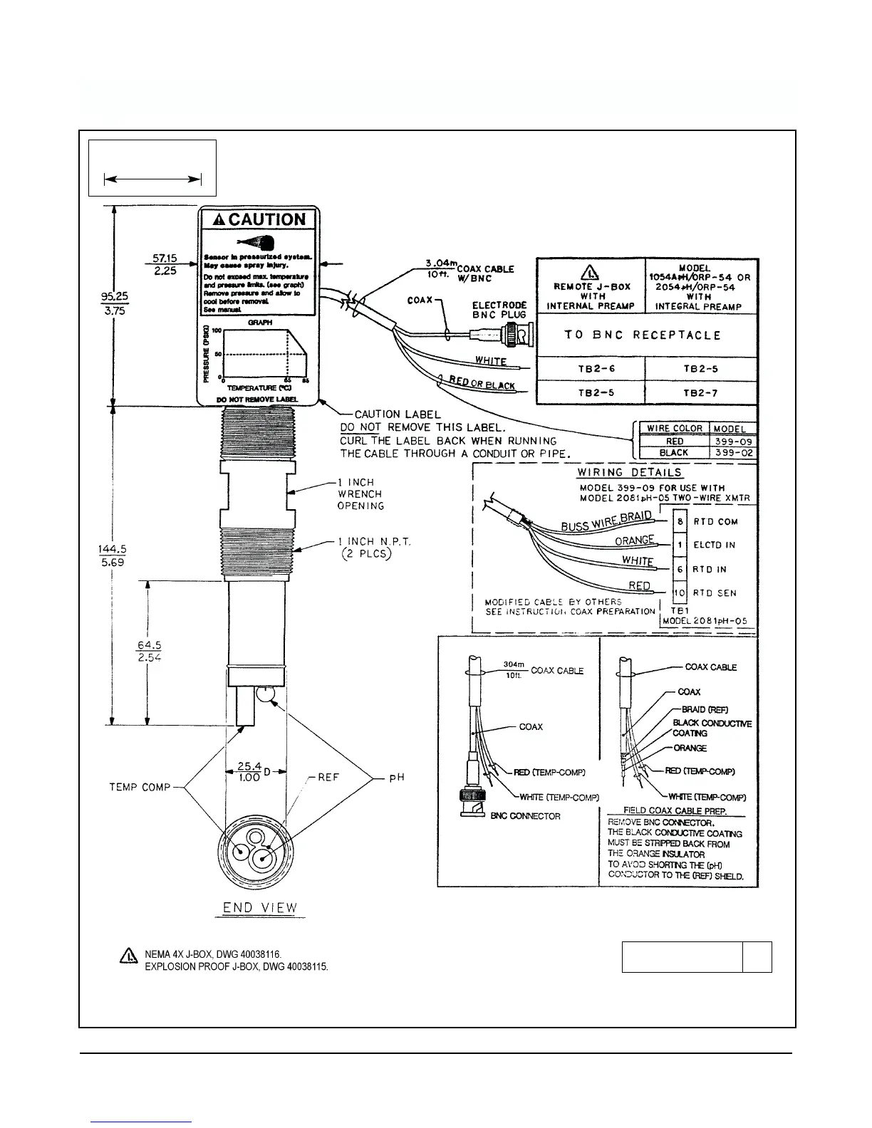
FIGURE 1-2. Sensor Wiring Details For use with 2081 pH
WHEN INCH AND METRIC DIMS
ARE GIVEN
MILLIMETER
INCH
DWG. NO. REV.
40039903 G
MODEL 2081 pH SECTION 1.0
INSTALLATION

Related product manuals