EasyManua.ls Logo

Rosemount 396P - Submersion Installations

Rosemount 396P
36 pages
Print Icon
To Next Page IconTo Next Page
To Next Page IconTo Next Page
To Previous Page IconTo Previous Page
To Previous Page IconTo Previous Page
Loading...
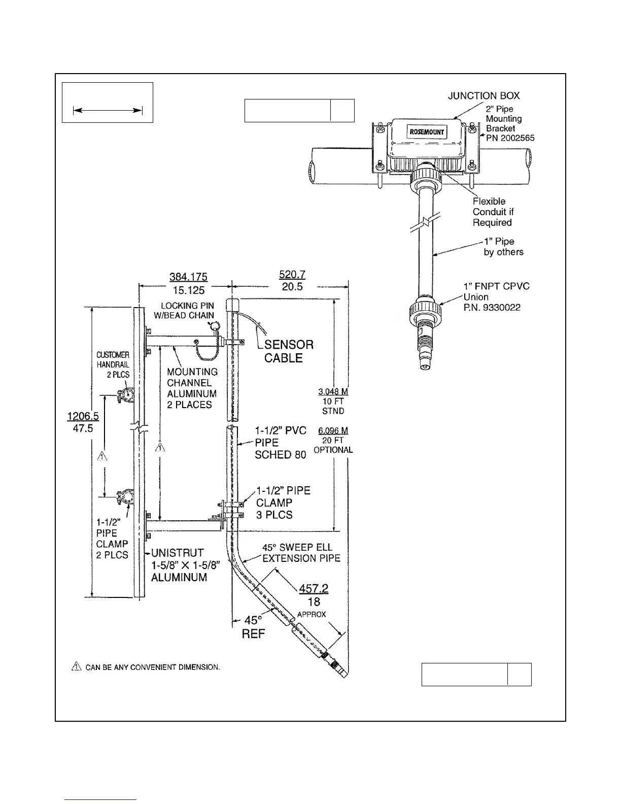
MODEL 396P and 396PVP SECTION 2.0
INSTALLATION
FIGURE 2-5. Submersion Installations
WHEN INCH AND METRIC DIMS
ARE GIVEN
MILLIMETER
INCH
DWG. NO. REV.
40396P04 A
DWG. NO. REV.
40396P03 A
Handrail Mounting
Assembly PN 11275-01
7

Table of Contents