EasyManua.ls Logo

Sam4s ER-420 - Fiscal Part

Sam4s ER-420
86 pages
Print Icon
To Next Page IconTo Next Page
To Next Page IconTo Next Page
To Previous Page IconTo Previous Page
To Previous Page IconTo Previous Page
Loading...
11-8 SAM4S ER-420M/F SERIES
11-7 FISCAL PART
4
Date
of
4
3
2
1
AB
Size
3
2
1
B
Drawn by
Sheet
C
TITLE :
D
C D
File Name
A3
Rev
Shin Heung Precision Co., Ltd.
4
Date
of
4
3
2
1
AB
Size
3
2
1
B
Drawn by
Sheet
C
TITLE :
D
C D
File Name
A3
Rev
Shin Heung Precision Co., Ltd.
T8
7
T7
D(0:7)
FD(0)
FD(3)
FD(2)
FD(1)
FD(6)
FD(5)
FD(4)
FA(0)
FD(7)
FA(3)
FA(2)
FA(1)
FA(6)
FA(5)
FA(4)
FA(8)
FA(7)
FA(11)
FA(10)
FA(9)
FA(14)
FA(13)
FA(12)
FA(15)
(For 27C512 nRD)
40mA
FD(6)
FD(7)
FD(3)
FD(4)
FA(4)
FA(5)
FA(17)
FA(7)
6
CN10:F
4
CN10:D
10
CN10:J
12
CN10:L
16
CN10:P
18
CN10:R
24
CN10:X
22
CN10:V
30
CN10:AD
28
CN10:AB
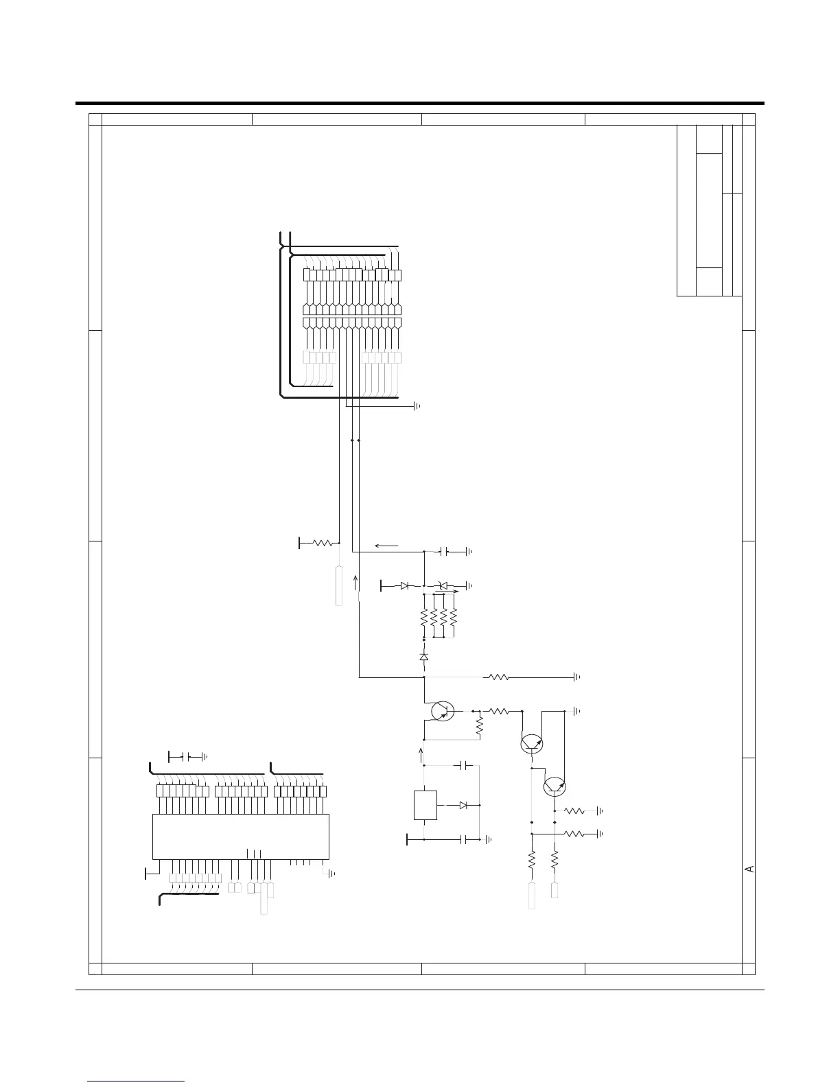
ER420 MAIN.SCH
ER-420 MAIN
FA(0:17)
8
R115
10K
4.7K
R116
+24V
500mA
VCC
R127
1K
23
1
KSA1182-Y
Q19
D16SK14
IN4735
ZD1
6.2V
37.2mA
CS_FISCAL_EPROM
FD(2)
FD(5)
FA(6)
2
CN10:B
8
CN10:H
26
CN10:Z
20
CN10:T
14
CN10:N
FISCAL PART
2004.04.21
FD(0:7)
V1.4
100nF
C101
4.7K
R120
VCC
2
3
1
MMBT2222A
Q21
D21
MMBD6050LT1
4.7K
R131
VCC
SK14
D17
VFIS_ONOFF
RESET
FD(0:7)
CS_FISCAL8255
_WR
_RD
A(1)
A(0)
D(2)
D(1)
D(0)
D(5)
D(4)
D(3)
D(7)
D(6)
FA(0:17)
Note] 8255 RESET Pin is "HIGH" Active
18.4mA
Fiscal EPROM VCC(6.2V)
FD(0)
FA(11)
3
CN10:C
5
CN10:E
FA(8)
FA(9)
9
CN10:I
11
CN10:K
FA(14)
FA(13)
15
CN10:O
17
CN10:Q
FA(1)
FA(0)
23
CN10:W
21
CN10:U
FA(16)
FA(3)
27
CN10:AA
29
CN10:AC
RESET
R119
10K
2
3
1
MMBT2222A
Q20
1
IN
3
OUT
2
GND
U26
MC7812
100nF
C93
Note] Fiscal EPROM Add16&17
CPU
㜄㉐
Port
㻐⥙ 㥐㛨╜
R109
6.8K
100nF
C91
470 R126
470 R130
470 R114
470 R118
(Fiscal EPROM nCS From CPU)
Fiscal EPROM Writing Voltage(12.5V)
VCC
FD(1)
FA(10)
FA(12)
FA(15)
FA(2)
25
CN10:Y
13
CN10:M
19
CN10:S
7
CN10:G
Hyun-Oh,Yun
100nF
C97
1
NC4
12
NC1
23
NC2
39
RESET
4
PA1
3
PA2
40
WR
6
RD
10
A0
9
A1
37
D1
38
D0
33
D4
35
D3
30
D7
31
D6
29
VCC
8
GND
34
NC3
5
PA0
2
PA3
7
CS
36
D2
32
D5
21
PB1
22
PB2
26
PB5
25
PB4
28
PB7
44
PA4
43
PA5
41
PA7
17
PC1
18
PC2
15
PC4
14
PC5
11
PC7
27
PB6
24
PB3
20
PB0
16
PC0
42
PA6
19
PC3
13
PC6
U21
82C55
R103
4.7K
1
CON-BOX;30P,2MM,2R,ST
CN10:A

Table of Contents

Related product manuals