EasyManua.ls Logo

Sam4s ER-420 - Rear Display PCB

Sam4s ER-420
86 pages
Print Icon
To Next Page IconTo Next Page
To Next Page IconTo Next Page
To Previous Page IconTo Previous Page
To Previous Page IconTo Previous Page
Loading...
11-12 SAM4S ER-420M/F SERIES
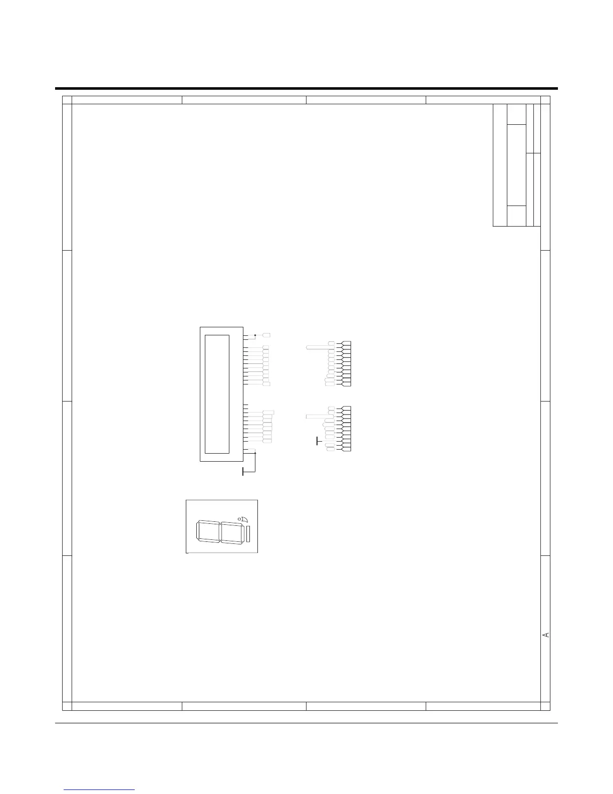
11-11 REAR DISPLAY PCB (ER-420F)
4
Date
of
4
3
2
1
AB
Size
3
2
1
B
Drawn by
Sheet
C
TITLE :
D
C D
File Name
A3
Rev
Shin Heung Precision Co., Ltd.
h
P10
d
P7
g
P3
a
dp
P2
b
P9
1
e
P6
P4
c
BLK
P6_E
VF1
P2_B
P1_A
P1_A
P3_F
P2_B
P5_C
P7_D
P8_DP
P4_G
P6_E
P5_C
G2
SEN_DISPDISCON
G1
P7_D
P8_DP
BLUE
P3_F G10
G9
P4_G
G10
G9
G7
G8
G8
G6
G7
G6
G4
G5
G5
SEN_DISPDISCON
G4
G3
G1
G2
G3
VF1
4
CN1:D
7
CN1:G
10
CN1:J
3
CN2:C
6
CN2:F
9
CN2:I
P8
com
f
P1
ER5200REARVFD.SCH
1
P5
VCC
VCC
2002.10.28
V1.0
2
CN1:B
3
CN1:C
5
CN1:E
6
CN1:F
8
CN1:H
9
CN1:I
11
CN1:K
2
CN2:B
5
CN2:E
4
CN2:D
8
CN2:H
7
CN2:G
10
CN2:J
11
CN2:K
VFD REAR PART
Hyun-Oh,Yun
1
CN1:A
CON-BOX;11P,2MM,ST
1
CN2:A
CON-BOX;11P,2MM,ST
ER-350/5100/5200/6500 DISPLAY
2
F1
5
P3
4
P2
8
P6
7
P5
11
P9
10
P8
13
G10
16
G7
15
G8
19
G4
18
G5
22
G1
21
G2
24
F2
23
F2
1
F1
3
P1
6
P4
9
P7
12
P10
14
G9
17
G6
20
G3
0 1 2 3 4 5 6 7 8 9
0 1 2 3 4 5 6 7 8 9
V1
VFD;10-LT-50G/GK,10DIG,FUTABA

Table of Contents

Related product manuals