EasyManua.ls Logo

Sam4s ER-420 - Power Part

Sam4s ER-420
86 pages
Print Icon
To Next Page IconTo Next Page
To Next Page IconTo Next Page
To Previous Page IconTo Previous Page
To Previous Page IconTo Previous Page
Loading...
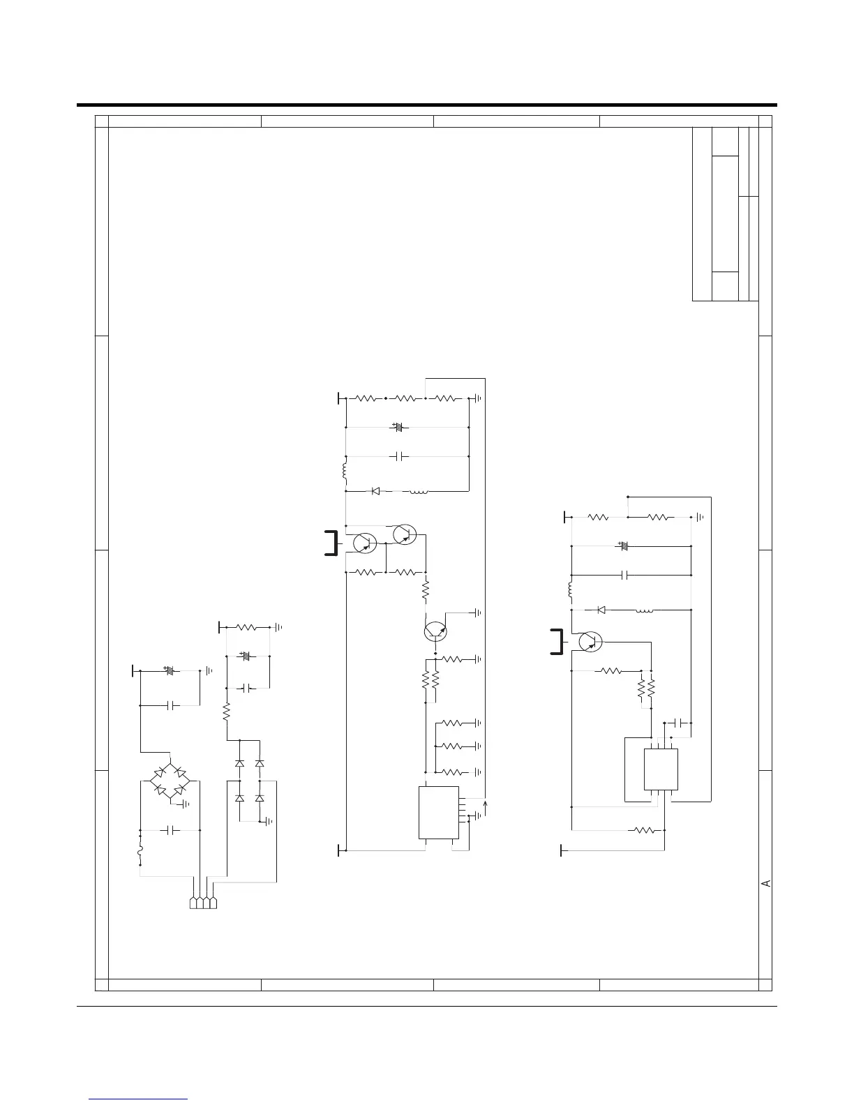
SAM4S ER-420M/F SERIES 11-9
11-8 POWER PART
4
Date
of
4
3
2
1
AB
Size
3
2
1
B
Drawn by
Sheet
C
TITLE :
D
C D
File Name
A3
Rev
Shin Heung Precision Co., Ltd.
4
Date
of
4
3
2
1
AB
Size
3
2
1
B
Drawn by
Sheet
C
TITLE :
D
C D
File Name
A3
Rev
Shin Heung Precision Co., Ltd.
8
+30V
M4 D4
M4 D2
ER420 MAIN.SCH
ER-420 MAIN
8
+30V
FU1
250V/3.15A
100pF
C36
R6
3.3K
1/4W
R3
3.3K
1/4W
220
1/4W
R16
R22
560
R14
470
D7
1N5822
100nF
C40
VOUT=VREF*{1+(R2/R1)}
3.3K
1/4W
R9
R24
560
R28
12K
R29
36K
R11
2K
+24V
R13
36K
POWER PART
2004.04.21
V1.4
+24V
HEATSINK_S
HS2
4700uF
C1
50V
100uF
C21
50V
L4
140uH
L2
BFD3565R2
R21
3.3K
VCC
13
2
KSA708-Y
Q6
100nF
C10
R12
1K
M4 D3
M4 D6
2
CN1:B
⇨⺴ ⽸Ẅὤ
VREF = 1.23V
6
N.C
4
PWRGND
1
FB
3
ON
5
VIN
7
OUT
8
N.C
2
SIGGND
LM2574-HV
U2
R7
3.3K
1/4W
3
CN1:C
4
CN1:D
R18
1K
1/4W
32
1
KSA1010-Y
Q5
470uF
C39
16V
2
3
1
MMBT2222A
Q3
18KR8
L3
BFD3565R218KR10
32
1
KSA1010-Y
Q4
L1
140uH
D5
1N5822
(+30V)
VDISP
Hyun-Oh,Yun
6
VCC
5
IN
3
TC
4
GND
1
SC
8
DC
7
SENSE
2
SE
KA34063
U5
3W
0.1
R19
Power Tranformer Output
1&2 : AC28V 2.3A (BLUE)
3&4 : AC26V 0.08A (RED)
14
2
3
KBU6B
BD1
100nF
C5
FILM
1
CN1:A
CON-WALL;4P,3.96MM,1R,1W ,ST
1K
1/4W
R17
100nF
C24
100nF
C7
HEATSINK_S
HS1
R15
27K
2200uF
C14
50V
VOUT=VREF*{1+(R2/R1)}

Table of Contents

Related product manuals