EasyManua.ls Logo

Sam4s ER-420 - Power S;W PCB

Sam4s ER-420
86 pages
Print Icon
To Next Page IconTo Next Page
To Next Page IconTo Next Page
To Previous Page IconTo Previous Page
To Previous Page IconTo Previous Page
Loading...
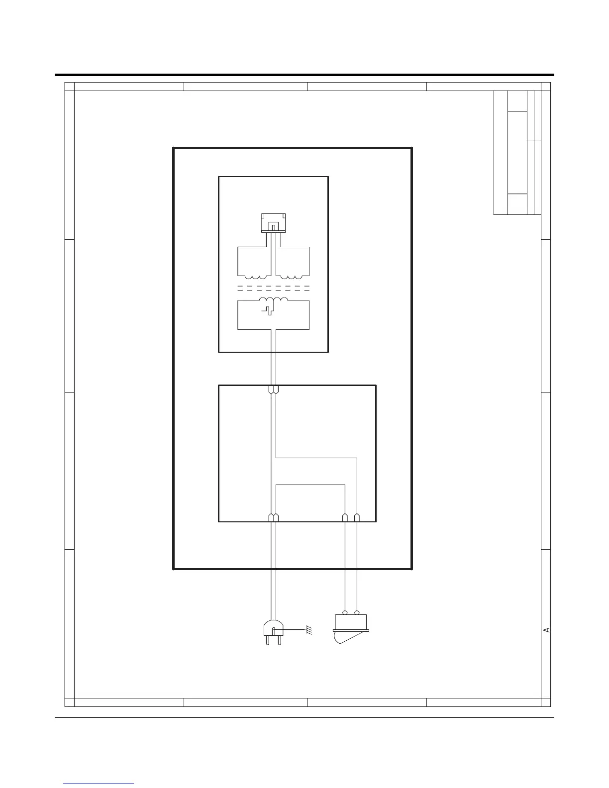
11-10 SAM4S ER-420M/F SERIES
11-9 POWER S/W PCB
4
Date
of
4
3
2
1
AB
Size
3
2
1
B
Drawn by
Sheet
C
TITLE :
D
C D
File Name
A3
Rev
Shin Heung Precision Co., Ltd.
4
Date
of
4
3
2
1
AB
Size
3
2
1
B
Drawn by
Sheet
C
TITLE :
D
C D
File Name
A3
Rev
Shin Heung Precision Co., Ltd.
2
1
1 1
RED
BLUE
BLUE
9
2 2
RED
EARTH
BROWN
BLUE
1
3
4
ER420 MAIN.SCH
ER-420 MAIN
9
V125
2
TO MAIN PBA
POWER
2004.04.21
V1.4
AC 22V / 2.3A
POWER ON/OFF SWITCH
POWER CORD
AC 230V / 50Hz
AC 26V / 0.08A
Hyun-Oh,Yun
V125(THERMAL FUSE : AC250 / 2A, 131 )
POWER SWITCH PCB POWER TRANSFORMER (JK26-00012A)
ER-420 INTERNAL POWER STRUCTURE

Table of Contents

Related product manuals