EasyManua.ls Logo

Samson 2488 N - Page 13

Samson 2488 N
28 pages
Print Icon
To Next Page IconTo Next Page
To Next Page IconTo Next Page
To Previous Page IconTo Previous Page
To Previous Page IconTo Previous Page
Loading...
EB 3136 EN 13
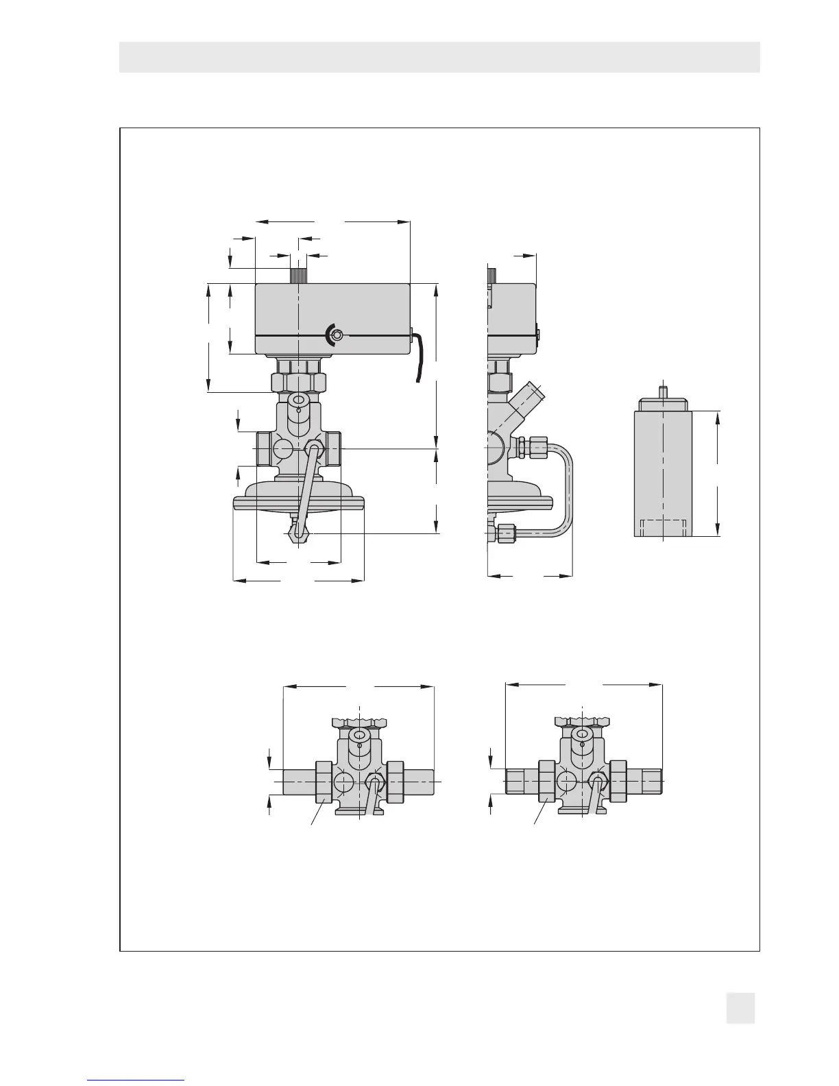
Design and principle of operation
Ø95
114
65
~65
120
ISO 228/1-G ¾
B
~70
Ø12
55
80
11
32
70
80
Intermediate insulating
piece
SW30
210
Ø21.3
SW30
129
Welding ends Threaded ends
Fig.3: Dimensional drawings

Related product manuals