EasyManua.ls Logo

Samsung NV75T9979CD - Page 73

Samsung NV75T9979CD
Print Icon
To Next Page IconTo Next Page
To Next Page IconTo Next Page
To Previous Page IconTo Previous Page
To Previous Page IconTo Previous Page
Loading...
Français 9
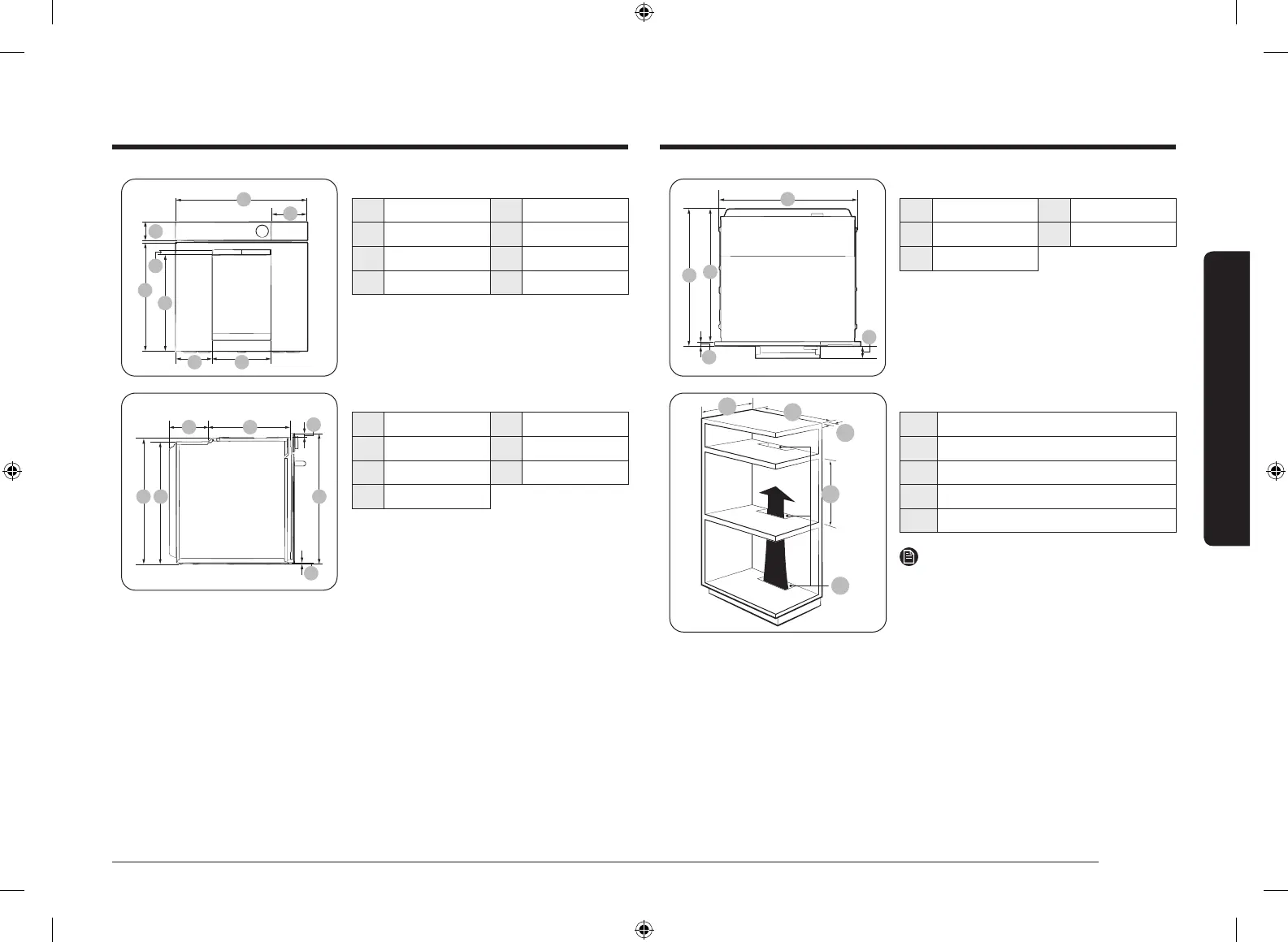
Installation
C
A
B
D
E
Four (mm)
A 560 D 21
B 549 E 50
C 570
D
C
B
A
E
Meuble encastré (mm)
A 550 minimum
B 560 minimum
C 50 minimum
D 590 minimum - 600 maximum
E 460 minimum x 50 minimum
REMARQUE
Le meuble encastrable doit avoir des orices
d'aération (E) pour ventiler de la chaleur et faire
circuler l'air.
C
B
HG
D
E
F
A
Four (mm)
A 595 E 439
B 163 F 22
C 85 G 165
D 495,5 H 264
FA B
C D
E
G
Four (mm)
A 579 E 17
B 559 F 596
C 177 G 7
D 372
NV75T9979CD_SW_DG68-01191G-01_DE+FR+IT+EN.indb 9NV75T9979CD_SW_DG68-01191G-01_DE+FR+IT+EN.indb 9 2021-05-28 오전 9:40:392021-05-28 오전 9:40:39

Table of Contents

Related product manuals