EasyManua.ls Logo

SanDisk SDP3B - Page 17

SanDisk SDP3B
111 pages
Print Icon
To Next Page IconTo Next Page
To Next Page IconTo Next Page
To Previous Page IconTo Previous Page
To Previous Page IconTo Previous Page
Loading...
SDP3B FlashDisk Product Manual
SanDisk SDP3B FlashDisk Product Manual © 1998 SANDISK CORPORATION 17
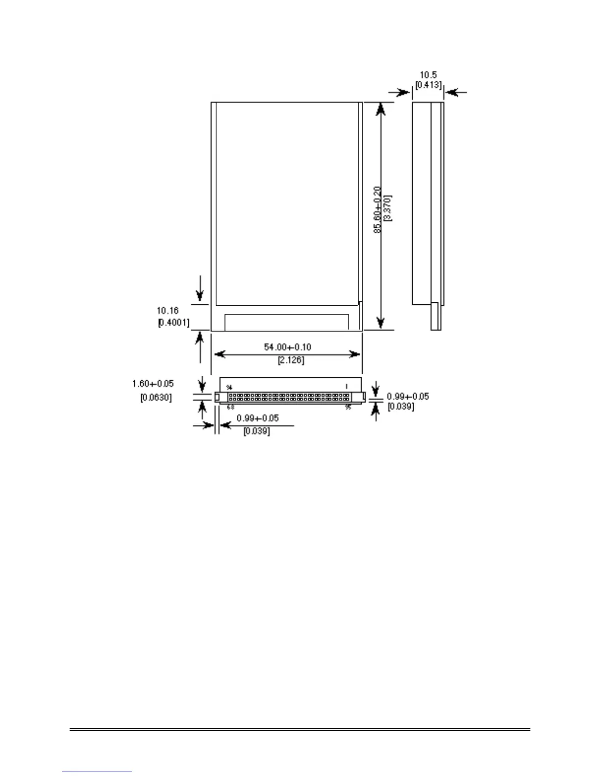
Figure 2-2 SDP3B Type III FlashDisk Dimensions

Table of Contents

Related product manuals