EasyManua.ls Logo

SawStop CB53480 - Page 76

Default Icon
104 pages
Print Icon
To Next Page IconTo Next Page
To Next Page IconTo Next Page
To Previous Page IconTo Previous Page
To Previous Page IconTo Previous Page
Loading...
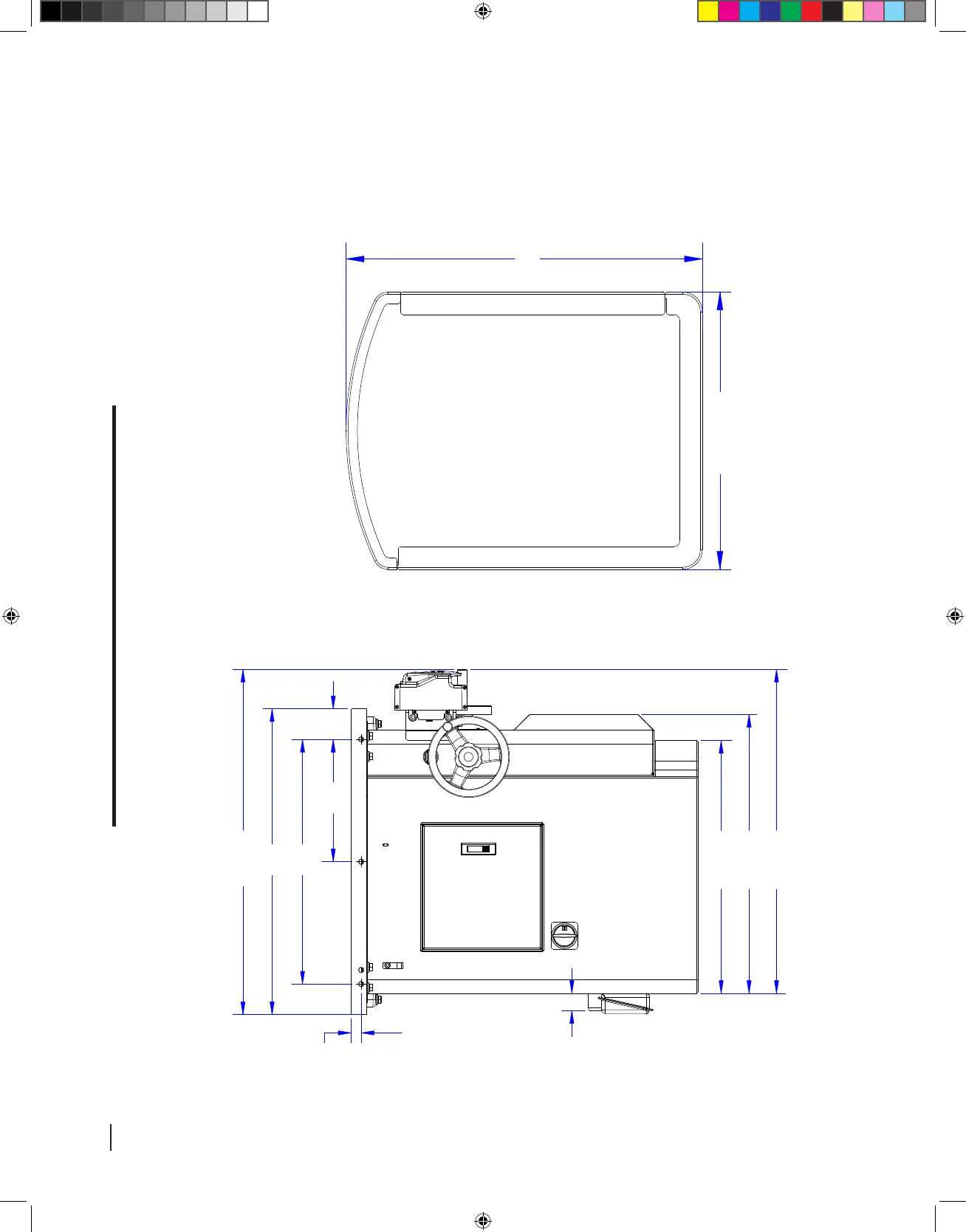
74 SawStop 10” Industrial Cabinet Saw
Cabinet Saw Dimensions
Left Side View Footprint
3"
12"
24"
30"
1"
33 7/8"
24 3/4"
27 3/8"
31 3/4"
1 3/4"
24 3/4"
19 1/4"
Cabinet Saw Manual 1st Reprint.i74 74 3/9/2010 8:33:11 AM

Table of Contents

Related product manuals