EasyManua.ls Logo

Schindler 6300 - Page 253

Schindler 6300
269 pages
Print Icon
To Next Page IconTo Next Page
To Next Page IconTo Next Page
To Previous Page IconTo Previous Page
To Previous Page IconTo Previous Page
Loading...
Schindler 3100/3300/6300 J 43402603 / 01 253/269
Copyright © 2017 INVENTIO AG
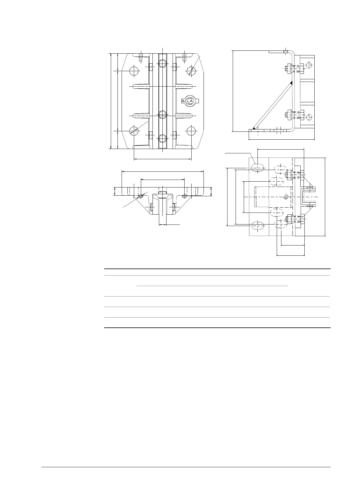
Overview I14 / L14
Guide Shoe I14 [20027; 14.07.2010]
Guide Shoe L14 [40043; 14.07.2011]
Type
Material
Weight [kg]
Liner Casing Isolation
I14
PA, UHM-PE AL diecast - 0.5
L14 PA, UHM-PE AL diecast PUR 2.6
00015329
84
120
63 ... 64
BFK
1
2
.
5
M
6
(26)8826
140
12
13
1
2
.
5
(131)
(155)
89
45
52
150
110
104
60
25 x 13.5

Table of Contents

Related product manuals