EasyManua.ls Logo

Scotchman DO-150-24M - Page 30

Scotchman DO-150-24M
121 pages
Print Icon
To Next Page IconTo Next Page
To Next Page IconTo Next Page
To Previous Page IconTo Previous Page
To Previous Page IconTo Previous Page
Loading...
PAGE 29
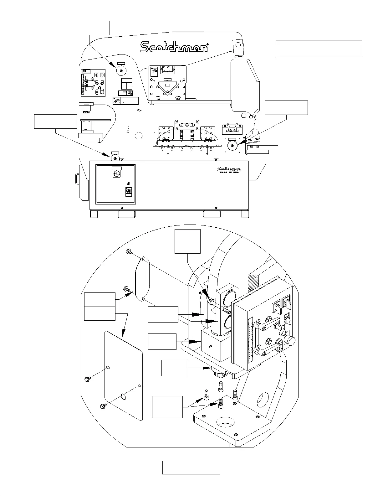
FIGURE 10
(3) MAIN PINS
15128
0
1
2
3
1
2
3
10
30
40
50
60
70
80
20
90
10
20
30
40
50
60
70
80
90
004085
080061
080061
START
START
PUNCH
TOOL
SHEAR
NOTCH
PROBE
RUN
TART
STOP
213012
213012
201240
M10x110
201240
M10x110
224205
224205
224205
224205
243101
PUNCH
RAM
PUNCH
BUSHING
PUNCH
STRAPS
PUNCH
STRAPS
BOLT
Punch Pin
Cover
Punch Ram
Cover
(4) PUNCH
BUSHING
BOLTS
(2)
UPPER BEAM
MAIN PIN
SHEAR BEAM
MAIN PIN
033297
DRIVE BEAM
MAIN PIN
LUBRICATE
BEFORE
OPERATING 19103 0481
LUBRICATE
BEFORE
OPERATING
19103 0481
LUBRICATE
BEFORE
OPERATING 19103 0481
37003 Assy
4185
DO NOT EXCEED
3 X 3 X 1/4
WHEN MITERING
0502003195
WARNING
TO PREVENT SERIOUS
BODILY INJURY
DO NOT PLACE FINGERS
BEYOND THIS GUARD
003140
013180
13179
201110M6x12
201110M6x12201110M6x12
201110M6x12
013180
13179
201110M6x12
201110M6x12201110M6x12
201110M6x12
17341
080435 Assy.
080430
230210230210
13220 - 3ph 13225 - 1ph
230 Volts
19121
OFF
EATON 11856
ELECTRICAL HAZARD
Turn off power
and lock out
before servicing.
DANGER
3122 1213
25525 Raw
224205224205
33176
80155
080174
243101
Assy.
13190
080061
080061
WARNING
SAFETY GLASSES REQUIRED WHEN
OPERATING OR OBSERVING THIS MACHINE
NEVER-
NEVER-
NEVER-
NEVER-
NEVER-
NEVER-
NEVER-
TO PREVENT SERIOUS BODILY INJURY
Operate, install tooling, service or adjust machine without
operator's manual and safety film.
Service machine with electrical power connected.
Operate any station without the respective strippers or
Operate machine with protective guards removed.
Place any part of your body under blade, punch or moving
Operate punch station without checking the punch to die
alignment and tightness.
Punch half holes, punch or shear unknown materials, side load
DO NOT REMOVE THIS SIGN FROM THIS MACHINE
REV. 0310
FOR MORE INFORMATION CONTACT SCOTCHMAN INDUSTRIES INC.
1-800-843-8844
003100
proper instructions and without reading and understanding the
hold-downs in place.
members.
(Check alignment and tightness daily.)
press brakes.
AT
SERIAL
SCOTCHMAN INDUSTRIES, INC.
PHILIP, SOUTH DAKOTA, U.S.A.
MADE IN U.S.A.
MODEL
FLA
HZ
PH
H.P.
VOLT
BLADE LENGTH
PH. 605-859-2542
PSI
33149
33156
010117
80191
80211
80197
33018
80424 F
224205224205
224205224205
33157
13268
080174
243101
Assy.
080174
243101
Assy.
80156 Sales
033047
LUBRICATE
BEFORE
OPERATING 19103 0481
LUBRICATE
BEFORE
OPERATING
19103 0481
LUBRICATE
BEFORE
OPERATING 19103 0481
JOG
3200
STOP
START
START
RUN JOG
PUNCH
TOOL
RUN PROBE
SHEAR NOTCH
START
MM. IN.
MM. IN.
90
80
70
60
50
40
30
20
10
10
90
80
70
60
50
40
30
20
3
2
1
3
2
1
0
004085
213012
213012
201240
201240
033707
080061
080061
#037009 11,04
DUAL OPERATOR
150/240 - 24M
MACHINE CAPACITIES
SPEC. BASED ON MILD STEEL-65,000 PSI TENSILE
PUNCH
150 TONS
Ø47 THRU 25MM
Ø1-7/8 THRU 1.0"
FLAT SHEAR
1 X 14" - 3/4 X 24"
BLADE LENGTH 24" - 600MM
25X300 - 12X600MM
THROAT DEPTH
12" - 305MM
RECT. NOTCHER
76X127X12MM
3"X5"X1/2"
PUNCH STROKE
2.25" - 57MM
ANGLE SHEAR
150X150X12MM
6"X6"X1/2"
037105
201630
113017
26710

Table of Contents

Related product manuals