EasyManua.ls Logo

Sharp AR-M276 - Electrical Section; Block Diagram

Sharp AR-M276
144 pages
Print Icon
To Next Page IconTo Next Page
To Next Page IconTo Next Page
To Previous Page IconTo Previous Page
To Previous Page IconTo Previous Page
Loading...
AR-M236/M276/M237/M277 ELECTRICAL SECTION 12 - 1
[12] ELECTRICAL SECTION
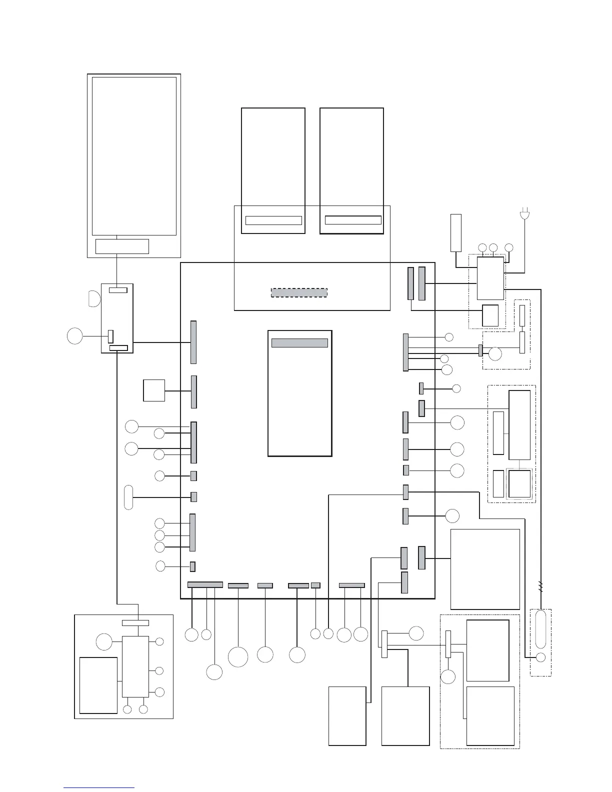
1. Block diagram
Mirror-Motor
RSPF Unit (AR-M236/276: Optional, AR-M237/M277: Standard)
Down-Load-CON
SPF-SEN-PWB
D-Sub 9pin
SPF Cover Sens
SPF PS Sens
SPF-PSOL
SPF Paper Empty
Staple empty sensor Stapler
SPF Paper Size Sens (x2)
Scanner Mirror HP
Cartridge empty
sensor
Paper Size Detector Staple operation motor
SPF Paper Width Sens (Analog)
Cover Sensor
Staple supply cover
open/close sensor
Rear edge plate HP sensor Staple HP sensor
SPF BOOK Sens
Sensor
AR-235/275 series Pin nothing compatible
Side guide plate HP sensor
L1
D-Sub 25pin D-Sub 15pin
Tray JAM process
sensor
Tray paper empty sensor
JAM process PG
open/close sensor
Self priming sensor
No. 1 tray paper exit sensor Side guide plate motor Rear edge plate drive
solenoid
L2
No. 2 tray paper exit sensor Rear edge plate drive
motor
Transport select gate
right solenoid
Defog
Lift-up drive control sensor
Upper alignment plate
drive solenoid
Heater Paper Size Sensor CCD-PWB
Tray position sensor Upper FIN main motor
Transport select gate
right solenoid 2
AB
INCH
Paper position sensor Tray lift-up motor
Shutter drive solenoid
Tray position sensor Lower Tray off-set motor
Paper exit roller clutch
Off-set position sensor
SPF-Motor SPF-pressure
release SOL
SPF-DupSOL
Shifter
HP
Sensor
Fuser Cooling Fan (x2)
CN***
Pout Sensor
Shifter-Motor
CN***
Duplex-Conveyance Motor
CN*** (New)
(Optional)
Duplex-Motor
CN***
Duplex Conveyance Sensor CN***(new)
Main body cassette unit
Duplex Paper Out Sensor
PAP1H ; Paper Empty
LUD1H ; Lift Up Detector Paper Remove (Optional)
PPD1H(PIN):Paper IN Sol
OR
PCS1H ; Pick Up Solenoid Drum Initial
CN140
Sensor
(Standard)
2nd cassette unit (Optional)
CSS2H ; Casette Detector
OP interface PWB
DRS2H ; Door Detector
PPD2H ; Paper Pass Detector
PAP2H ; Paper Empty
LUD2H ; Lift Up Detector
PCL2H ; Pick Up Clutch
LUM2H ; Lift Up Motor
CN***
TRCLH;
Vertical transport roller
clutch
Paper Feed Motor
Multi-step cassette unit (Optional)
Manual feed unit
OP interface PWB
Main body paper feed load
HPEMPTY: HandpaperEmpty sensor
DEV
Defog Heater
Paper Feed Motor
HPIN: Handpaper IN Sensor
Ozon Fan
(Japan Only)
HPTRAY1: HandpaperTRAY Sensor 1
MAIN-Motor InterLock Power Unit
OP-UP cassette
OP-LO cassette
HPTRAY2: HandpaperTRAY Sensor 2
Toner-Motor Auditer I/F
Coin
Switch
PPD1 ; Paper Pass Detector
PPD2 ; Paper Pass Detector
HPSIZE 1: Handpaper Size Sensor 1
Vender
(include CRSM)
PAP1 ; Paper Empty
PAP2 ; Paper Empty
HPSIZE2: Handpaper Size Sensor 2
LUD1 ; Lift Up Detector
LUD2 ; Lift Up Detector
HPWS: Handpaper Width Sensor(Analog)
HPSOL: Handpaper PickUp Solenoid
OPERATION PANEL
Power Supply
PS Cooling Fan
CSS1 ; Casette Detector
CSS2 ; Casette Detector HVU (New)
DRS1 ; Door Detector
DRS2 ; Door Detector
WakeUp SW
Tiger Size-LCD
Main / Sub PS-SW
PCL1 ; Pick Up Clutch
PCL2 ; Pick Up Clutch
CSS1H: Cassette Detector
Touch Panel
LUM1 ; Lift Up Motor
LUM2 ; Lift Up Motor
PSRSOL: Paper Stop Roller Sol.
Polygon-Motor
Reactor
TRCL ;
Vertical transport roller
clutch 2
PCL1H: PickUp Cluth
Key/LED PWB
(CE Only)
LUM1H: Lift Up Motor
COPY-OP-PWB
APC-PWB BD-PWB AC
*
LLC: Drop Fuser Unit LSU-PWB BD-Sensor
LSU-UN
Thermister (x2 Analog)
CN***
(AB / INCH )
IMC PWB
CN***
CN***
CN***
CN***(new)
MCU-PWB
CN***(chg)
2nd POUT COVER
SENSOR
CN***
CN***(New)
CN***
CN***
CN***
CN***
CN***
CN***(chg)
Option
Connector PWB
Finisher Unit (Optional)
FAX PWB
FINISHER PWB
PCL PWB
GDI/USB PWB
CN***(chg)CN***(chg)
Mother PWB
(New)
Pout Gate
Solenoid
Pout 2 Ssensor
CN***
CN***
SPF-CNT-PWB
Paper Full Sensor
TRAYPAPER
SENSOR
CN***
CN***
CN***(chg)
CN***
(chg)
CN***
Copy-Lamp
Fuser-Lamp (x2)

Other manuals for Sharp AR-M276

Related product manuals