EasyManua.ls Logo

Siemens 6SE7034-6EE85-1AA0 - Page 18

Siemens 6SE7034-6EE85-1AA0
274 pages
To Next Page IconTo Next Page
To Next Page IconTo Next Page
To Previous Page IconTo Previous Page
To Previous Page IconTo Previous Page
Loading...
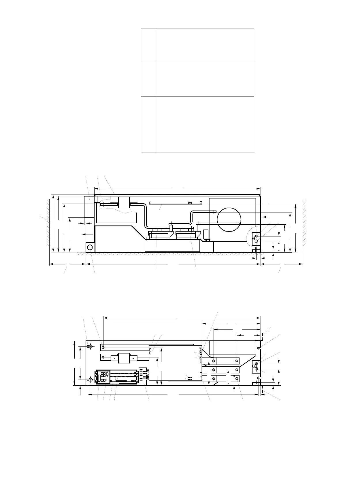
Transport, Unpacking and Assembly 05.00
2-4 Siemens AG 6SE7087-6AK85-1AA0
Rectifier/Regenerating Unit Operating Instructions
V1
L2
25
17
Ø13
Ø17
PE
4)
5)
C/L+ D/L-
A23
F1 F2
F4F3X9
X29 X19
1025
10
30
41
17
44,5
1)
2)
Ø13Ø17
2)
PE
1)
6)
269
180
170
228
100
941
286
147
1050
1000
9)
30
168,5
70
a
9)
b
5)
3)
7)
A23
E1
A10
F10
X48
148
94,5
U1
L1
W1
L3
1U2
1T1
1V2
1T2
1W2
1T3
F10
292
352
X300
237,5
X47
8)
10)
10)
350
340
294
5)
212
9
6SE7031-7EE85-1AA0 400 300
6SE7032-2EE85-1AA0 400 300
6SE7033-1EE85-1AA0 450 350
6SE7033-8EE85-1AA0 500 400
6SE7034-6EE85-1AA0 500 400
6SE7036-1EE85-1AA0 600 500
6SE7031-5FE85-1AA0 400 300
6SE7032-4FE85-1AA0 450 350
6SE7032-7FE85-1AA0 450 350
6SE7033-5FE85-1AA0 500 400
6SE7034-2FE85-1AA0 500 400
6SE7035-4FE85-1AA0 600 500
6SE7031-4HE85-1AA0 400 300
6SE7032-2HE85-1AA0 400 300
6SE7032-7HE85-1AA0 400 300
6SE7034-2HE85-1AA0 500 400
6SE7035-3HE85-1AA0 600 500
Weight: refer to section 14
1) Mounting hole for screw M8
2) Mounting hole for power connections:
M16 for 6SE7036-1EE85-1AA0, 6SE7035-4FE85-1AA0
6SE7034-2HE85-1AA0 and 6SE7035-3HE85-1AA0
M12 for every other units
3) Connection for
PE, mounted:
M16 for 6SE7036-1EE85-1AA0, 6SE7035-4FE85-1AA0
6SE7034-2HE85-1AA0 and 6SE7035-3HE85-1AA0
M12 for every other units
4) Hole for crane hook
30mm
5) Front cover only for design IP20
6) Connector for power supply DC24V and main contactor
7) Fan-Customer connection (X19)
8) Screen connection for cables
9) Space required for connection and cooling the unit
Unit Dimension a Dimension b
(mm) (mm)
No displacement of the centre of gravity
Dimension: mm
Front view
Air intake
Exhaust air
V21 to V26
V11 to V16
Options
PMU
PMU
10) Remove transport plates before start-up
Figure 2.3 Dimension drawing, size E
https://www.aotewell.com
AoteWell Automation Sales Team
Sales@aotewell.com
AoteWell LTD
Buy Siemens PLC HMI Drives at AoteWell.com
https://www.aotewell.com

Table of Contents

Related product manuals