EasyManua.ls Logo

Siemens 6SE7038-2EH85-1AA0 - Disassembling the Thyristor Blocks for Size K

Siemens 6SE7038-2EH85-1AA0
274 pages
To Next Page IconTo Next Page
To Next Page IconTo Next Page
To Previous Page IconTo Previous Page
To Previous Page IconTo Previous Page
Loading...
09.02 Maintenance
Siemens AG 6SE7087-6AK85-1AA0
8-13
Rectifier/Regenerating Unit Operating instructions
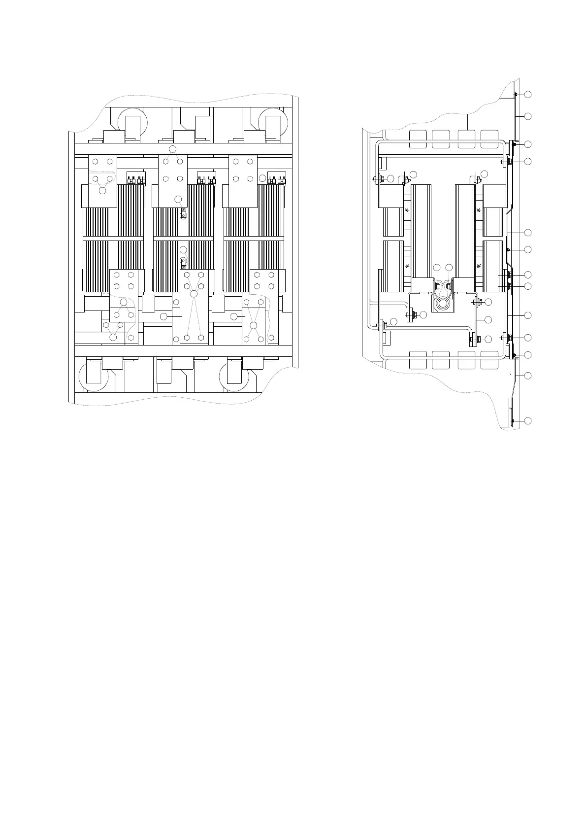
8.2.5.2 Disassembling the thyristor blocks for size K
15
1
2
3
1
3
3
12
8
10
6
1116
13
7
7
5
2
5
5
14
GKGK GK
8
9
GK GK GK
15
1
4
9
14
4
5
6
7
13
10
Front thyristor block, level A (weight of a thyristor block, approx. 25 kg)
Remove the 3 covers a by removing 7 M4 hexagon-head bolts s and 3 M4 nuts d.
Remove the copper plate f by removing 6 M10 hexagon-head bolts g.
Remove the copper plate h by removing 4 M10 hexagon-head bolts j.
Unplug the gate and cathode cables k (G, K).
Only on disassembling the central thyristor block, remove the two thermistors that are only located on the
central thyristor block by removing the screws
l (Torx drive T25).
Loosen the two M10 hexagon-head screws ; and swing the thyristor block out forwards.
Loosen M10 nut A and pull the thyristor block out upwards at an angle.
Rear thyristor block, level B (weight of a thyristor block, approx. 25 kg)
Unplug gate and cathode cables (G, K) S.
Remove 2 M10 hexagon-head screws D.
Remove 2 M10 hexagon-head screws F.
Remove 2 M10 hexagon-head screws G.
Loosen M10 nut H , swing the thyristor block out forwards and pull the thyristor block out upwards at an
angle.
The thyristor blocks are installed in the reverse order.
https://www.aotewell.com
AoteWell Automation Sales Team
Sales@aotewell.com
AoteWell LTD
Buy Siemens PLC HMI Drives at AoteWell.com
https://www.aotewell.com

Table of Contents

Related product manuals