EasyManua.ls Logo

Siemens 6SE7038-2EH85-1AA0 - Page 56

Siemens 6SE7038-2EH85-1AA0
274 pages
To Next Page IconTo Next Page
To Next Page IconTo Next Page
To Previous Page IconTo Previous Page
To Previous Page IconTo Previous Page
Loading...
Connection 09.02
3-34 Siemens AG 6SE7087-6AK85-1AA0
Rectifier/Regenerating Unit Operating instructions
A23
C98043-A1685
C/L+ D/L-
X11-1
X11-2
V11
C11 R11
F11
F14
F15
F12
F13
F16
G11
K11
K
XU11
X24-2
X24-1
V24
C24 R24
K24
G24
A
X13-1
X13-2
V13
C13 R13
G13
K13
K
XV13
X26-2
X26-1
V26
C26 R26
K26
G26
A
X15-1
X15-2
V15
C15 R15
G15
K15
K
XW15
X22-2
X22-1
V22
C22 R22
K22
G22
A
A
K
A
K
A
K
X21-1
X21-2
V21
R21 C21
G21
K21
K
X14-2
X14-1
V14
R14 C14
K14
G14
A
A
K
XU21
X23-1
X23-2
V23
R23 C23
G23
K23
K
X16-2
X16-1
V16
R16 C16
K16
G16
A
A
K
XV23
X25-1
X25-2
V25
R25 C25
G25
K25
K
X12-2
X12-1
V12
R12 C12
K12
G12
A
A
K
XW25
F25
F22
F21
F24
F23
F26
X47-3
X47-2
k
l
K
L
K
L
l
k
X47-1
X47-4
T1 T2
X48-3
X48-2
k
l
K
L
K
L
l
k
X48-1
X48-4
T3
T4
PE X1: U1/L1 V1/L2 W1/L3
X4: 1U2/1T1 1V2/1T2 1W2/1T3
R75
R77
R76
R78
R79R80
X29-2
X29-1
X29-3
K101-2
M
1~
E1
X20-1
X20-2
X31-1
X31-2
ϑ
R100
F2
T7A
X9-4
X9-3
X9-5
F1
T2A
X9-1
X9-2
K1-2
N.C.
+
-
A23
C98043-A1685
X239
F5
T2A
X32-1
X32-2
ϑ
R101
230V~
F3
T7A
X19-2
X19-1
F4
T7A
X27
A10-X109
(C98043-A1680)
24V-power
supply unit
Main contactor
Load 1 Load 2
Termal sensor
on the heatsink
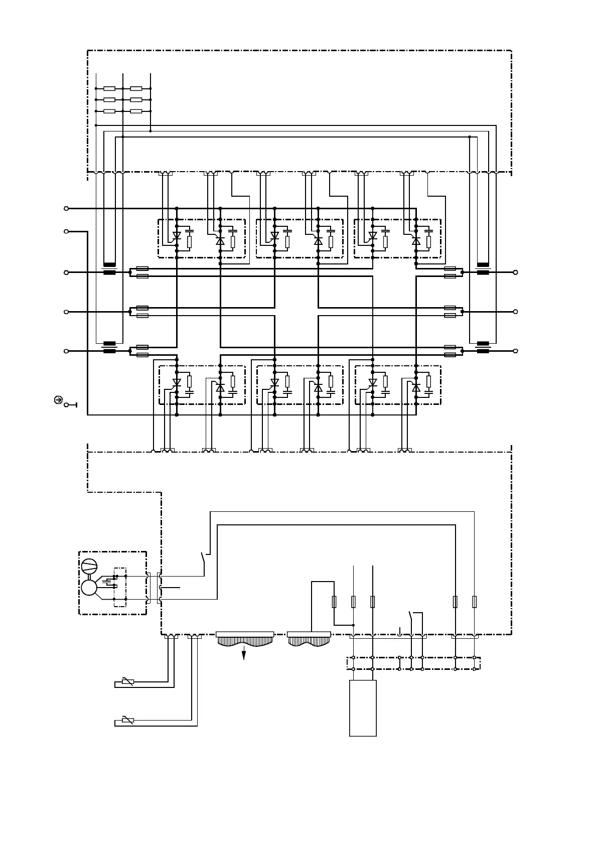
Figure 3.23 Power section, Size H
https://www.aotewell.com
AoteWell Automation Sales Team
Sales@aotewell.com
AoteWell LTD
Buy Siemens PLC HMI Drives at AoteWell.com
https://www.aotewell.com

Table of Contents

Related product manuals