EasyManua.ls Logo

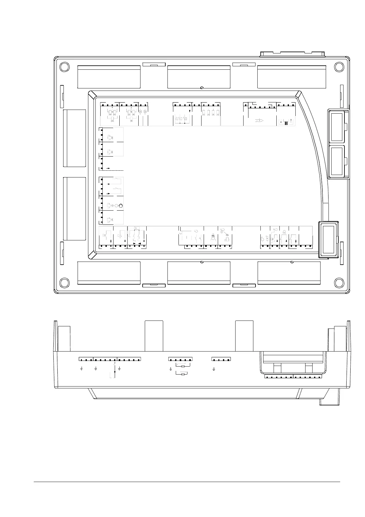
Siemens LMV51.100B2 - Connection Terminals of the Lmv51.100 X2

Siemens LMV51.100B2
299 pages
To Next Page IconTo Next Page
To Next Page IconTo Next Page
To Previous Page IconTo Previous Page
To Previous Page IconTo Previous Page
Loading...
173/301
Siemens Building Technologies Basic Documentation LMV5... CC1P7550en
HVAC Products 9 Connection terminals / coding of connectors 13.08.2004
9.4 Connection terminals of the LMV51.100x2
LOAD
OUTPUT
FE
0
4...20 mA
0...10V
Power Supply
Sensor
FE
0
4...20 mA
FE
0
4...20 mA
0...10V
X63
1
X62 X61
11
X60
1
Pt100
Pt / Ni 1000
FE
X52
1
FE
12VAC2
M
12VAC1
BUS
GND
CANL
CANH
12VAC2
12VAC1
Shield
BUS
GND
CANL
CANH
Shield
12VAC2
12VAC1
X51
1
X50
1
SET POINT
INPUT
TEMP./PRES.
INPUT
TEMP. TRAFO
X8-03
PE
N
L
V1
OIL
111
OIL
GAS
PE
N
L
L
L
V1
X8-02 X8-01
GAS
X9-03 X9-02 X9-01
1
min.
max.
LT
(CPI)
P
L
11
L
L
L
L
N
PE
V1
V2
PV
SV
X10-03
GAS + OIL
1
ION
FSV / QRI
PE
N
X10-02.1
L
POWER QRI
QRB
FLAME
N
L
X10-01
G0
G
LINE
12 VAC
1
T4
IEC 60127-2V/
T4
IEC 60127-2V/
T6, 3
IEC 60127-2/V
X7-01
L
N
PE
V2
OIL
X7-02
1
V3
X7-03
11
PE
N
L
PE
X6-01
1
Start
L
HO-Start
L
X6-02
PE
N
M
X6-03
SV
OIL
11
N
L
PE
L
OIL
L
L
P
P
PE
min.
X5-01
111
PE
L
max.
ON/OFF
3
2
X5-02 X5-03
GAS + OIL
L
INT
GAS
OIL
RESET
X4-01
X4-02
X4-03
L
L
PE
PE
N
N
IGNITION
(START)
111
MO TOR
ALARM
L
1
X3-01
L
111
L
L
L
L
P
X3-02 X3-03 X3-04
PE
N
FLANGE
SAF ETY
LOOP
LINE
VOLTAGE
7550z15/0404
P
1
PP
L
X10-02.2

Table of Contents

Related product manuals