EasyManua.ls Logo

Siemens SIMOVERT MASTERDRIVES 6SE7021-6CS87-2DA0 - Page 63

Siemens SIMOVERT MASTERDRIVES 6SE7021-6CS87-2DA0
70 pages
Go to English
To Next Page IconTo Next Page
To Next Page IconTo Next Page
To Previous Page IconTo Previous Page
To Previous Page IconTo Previous Page
Loading...
03.2004 Technical Data
Siemens AG 6SE7087-7CX87-2DA0
SIMOVERT MASTERDRIVES Unité de Freinage / Braking Unit 7-5
100
100
380
485
100
9
400
380
305
710
740
T1 / T2
Socket terminal, 2.5 mm
2
Pg11
Pg21
M8
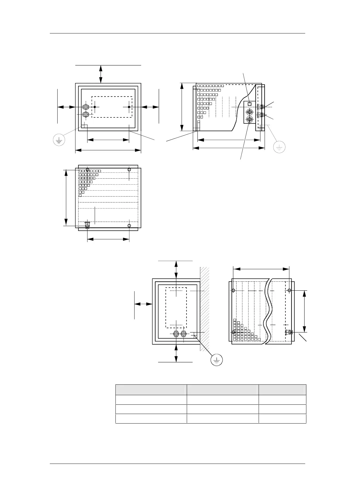
Box dimensions: 760 x 500 x 320
380
Pg
710
100
100100
Floor mounting
Stud terminals, M6
Wall mounting
Brake resistor for Type Weight, approx.
50 kW; 8 6SE7028-0ES87-2DC0 27 kg
50 kW; 12.4 6SE7026-4FS87-2DC0 27 kg
50 kW; 17.8 6SE7025-3HS87-2DC0 28 kg
Fig. 7-4 Mounting diagram, brake resistor for floor and wall mounting

Related product manuals