EasyManua.ls Logo

Siera SDR 2004 - Rear Panel Connections

Default Icon
146 pages
Print Icon
To Next Page IconTo Next Page
To Next Page IconTo Next Page
To Previous Page IconTo Previous Page
To Previous Page IconTo Previous Page
Loading...
18
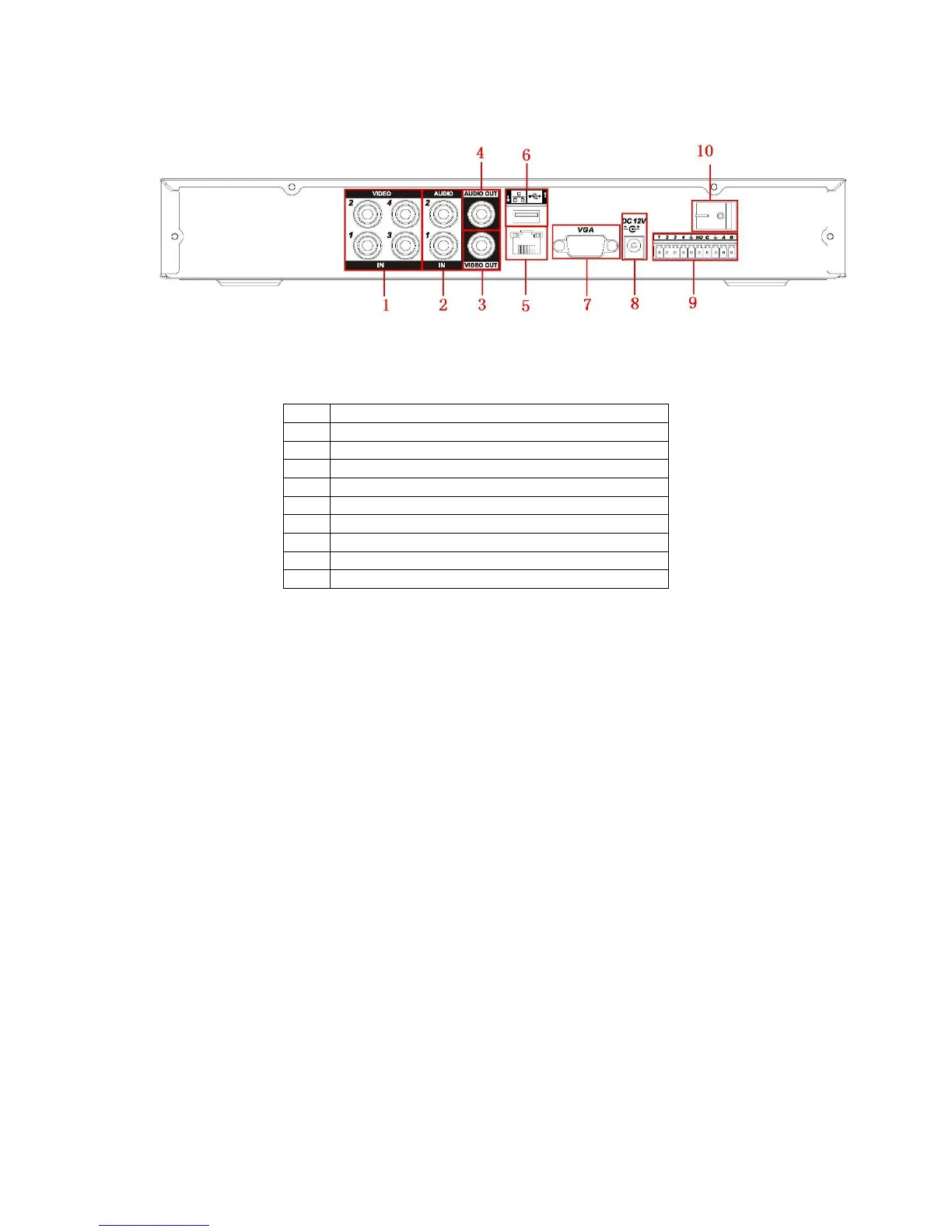
2.2 Rear Panel SDR 2004
Figure 2-2
4-channel
Please refer to the following sheet for detailed information.
1 Video input
2 Audio input
3 Video CVBS output
4 Audio output
5 Network port
6 USB port
7 Video VGA output
8 Power input port
9 Alarm input/alarm output/RS485 port
10 Power button
When connect the Ethernet port, please use straight cable to connect the PC and use the
crossover cable to connect to the switcher or router.

Table of Contents

Related product manuals