EasyManua.ls Logo

Sime AR Series - Combustion Chamber Dimensions; Installation; Boiler Room; Boiler Room Dimensions

Sime AR Series
Print Icon
To Next Page IconTo Next Page
To Next Page IconTo Next Page
To Previous Page IconTo Previous Page
To Previous Page IconTo Previous Page
Loading...
1.1 INTRODUCTION
The new AR - ARB freestanding”
series of cast iron boilers has been
designed in compliance with the
European Directive CEE 92/42. They
use light oil and have a perfectly bal-
anced combustion with a very high
thermal efficiency for economical per-
formance. The ARB” boiler series is
designed for heating and the produc-
tion of domestic hot water, while the
AR” series is designed for central
heating purposes only.
The components for AR” installation
are supplied in three separate pack-
ages: boiler body, casing with enclosed
documents and control panel.
20
1 BOILER DESCRIPTION
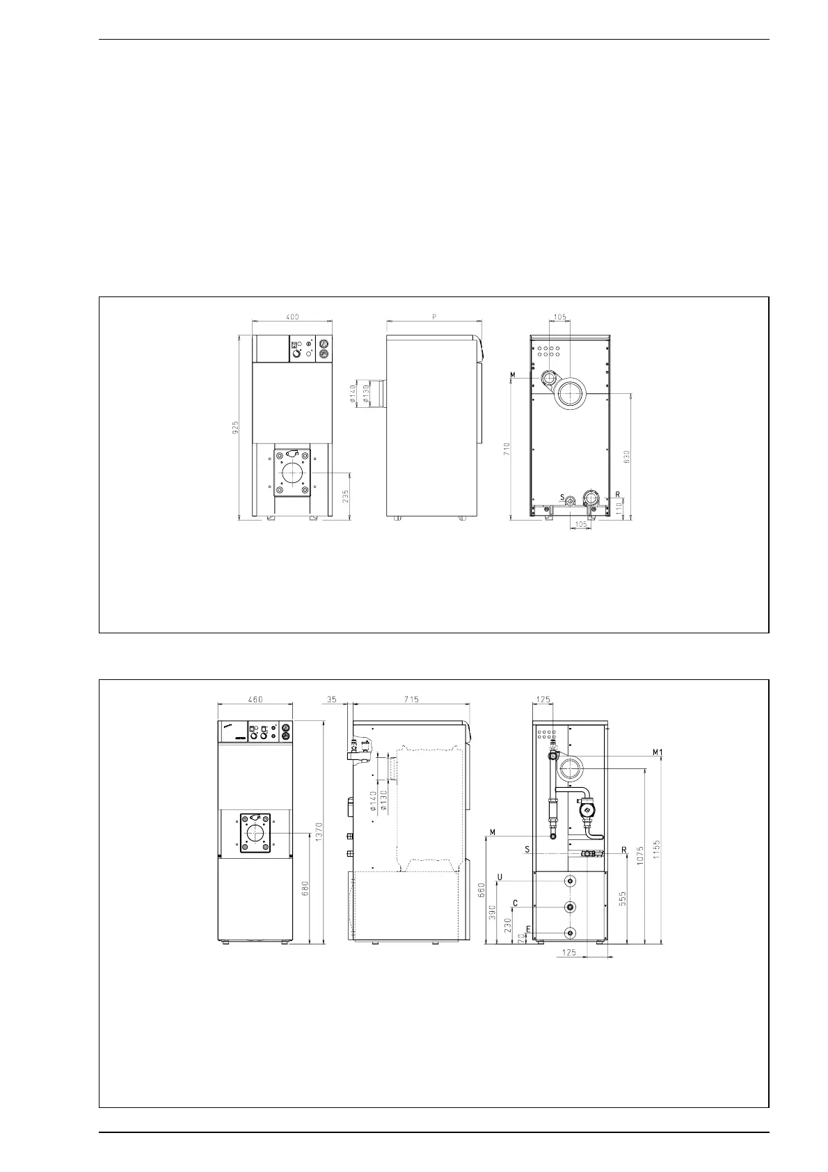
1.2 DIMENSIONAL DETAILS
1.2.1 AR” model
1.2.2 ARB” model
Fig. 1
AR3 AR4 AR5
P Depth 375 475 575
M C.H. flow 1
1
/
2
”1
1
/
2
”1
1
/
2
R C.H. return 1
1
/
2
”1
1
/
2
”1
1
/
2
””
S Boiler filling-drain 1/2” 1/2” 1/2”
ARB4 ARB5
M1 Zone system flow 1
1
/
4
”1
1
/
4
M C.H. flow 1” 1”
R C.H. return 1” 1”
S Boiler filling-drain 1/2” 1/2”
E D.C.W. inlet 3/4” 3/4”
C Recirculation 3/4” 3/4”
U D.H.W. outlet 3/4” 3/4”
Fig. 1/a

Table of Contents

Other manuals for Sime AR Series

Related product manuals