EasyManua.ls Logo

Sime AR Series - Mere Gori©A; 2 Instalacija; Kurilnica; Mere Kurilnice

Sime AR Series
Print Icon
To Next Page IconTo Next Page
To Next Page IconTo Next Page
To Previous Page IconTo Previous Page
To Previous Page IconTo Previous Page
Loading...
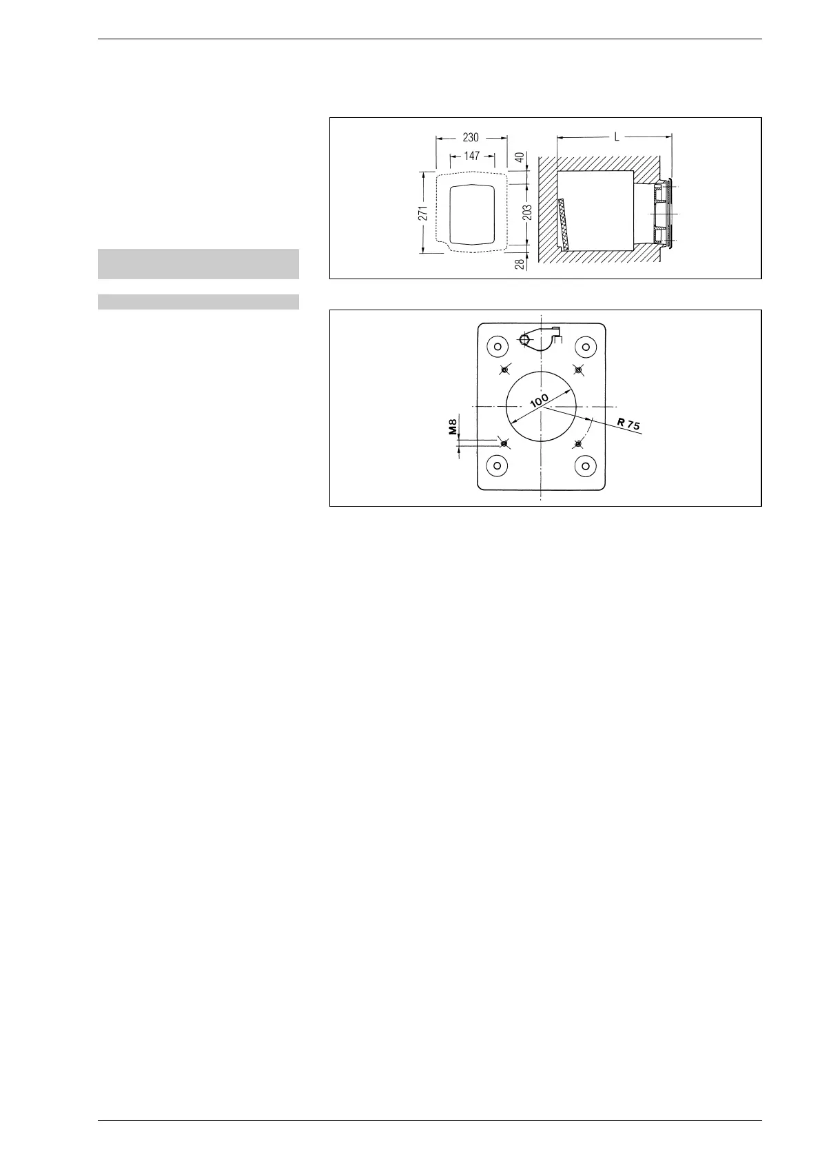
1.5 MERE GORI©»A
Gorilna komora je tipa z direktnim
prehodom in je v skladu z norma-
tivo pr EN 303-3, priloga E.
Dimenzije so prikazane na sliki fig.
3. ©amotno opeko dobavimo za
modele “AR” i “ARB”.
1.5.1 Montiranje gorilnika
PeË je izdelana tako, da je mogoËe
vgraditi gorilnik.
Dimenzjie flanπe za pritrditev so
oznaËene na sliki 4.
Gorilniki morajo biti regulirani
tako, da je vrednost CO
2
tista, kj
je prikazana v toËki 1.3 z odsto-
panjem ± 5%.
38
2.1 KURILNICA
Namestitev mora biti trajna in jo
morajo opraviti izkljuËno za to
usposobljena in kvalificirana
podjetja, kot predpisuje zakon
46/90. Upoπtevati morajo vsa
navodila in predpise, ki jih vsebuje
ta zvezek.
2.2 MERE KURILNICE
PeË je potrebno namestiti na 10
cm visokem podstavku in naj sloni
na æeleznih tirnicah. Med stenami
prostora in peËjo mora biti vsaj
60 cm razdalje, med zgornjo plo-
skvo in stropom pa vsaj 1 m. Ta
razdalja je lahko manjπa (0,5 m)
za peËi z vgrajenim bojlerjem.
Vsekakor kurilnica ne sme biti
niæja od 2,5 m.
2.3 PRIKLJU»ITEV
NA NAPELJAVO
Pri hidravliËnih prikljuËkih je
potrebno dræati se navodil, ki so
navedena ob risbi πt. 1.
Primerno je, da so vsi prikljuËki
povezani s pomoËjo vijakov
“Holandec” (vrtljiva matica).
Napeljava mora biti tipa z zaprto
ekspanzijsko posodo.
2.3.1 Dodatki, ki se
inπtalirajo na peËi “ARB”
Za garancijo funkcionalnosti peËi
je treba montirati na rokovnik
3/8” odvodne cevi za gretje, avto-
matski odzraËni ventil zraka (3
risba 2) in rokovnik 1/2” varno-
stni ventil tariran na 3 bar (4
risba 2). Pripraviti za montaæo var-
nostnega ventila tariranega na 7
bar (9 risba 2), ki ga postavimo na
cev dovoda sanitarne vode boj-
lerja, da se izognemo eventuelne-
mu pritisku, ki bi povzroËal okvaro
tega. V sluËaju da varnostni ventil
bojlerja intervenira pogostoma, za
prepreËiti to sitnost je dovolj da
montiramo na sanitarni kroæni tok
ekspanzijsko posodo (8 risba 2), ki
ima kapaciteto 5 litrov in maksi-
malno delovno moË pritiska 8 bar.
Posoda mora imeti membrano iz
naravne gume “kauËuk” primiren
za prehambeno rabo. Ogrevalna
Ërpalka je lahko inπtalirana na
hrbtni strani peËi v nadomestilo
prekinitve stika (14 risba 2).
2.3.2 Polnjenje omreæja
Preden prikljuËimo peË na
omreæje je primerno, da poskr-
bimo za kroæenje vode po ceveh
in s tem odstranimo moæno
umazanijo, ki se je nabrala in bi
vsekakor povzroËila slabo delo-
vanje naprave.
Polniti moramo poËasi, kajti samo
tako bomo s pomoËjo ventilov,
nameπËenih na raznih mestih
napeljave, izloËili nastale zraËne
mehurËke. Centralna ogrevanja
zaprtega vodnega tokokroga, priti-
sk hladnega polnjenja napeljave in
pritisk predhodnega polnjenja
ekspanzijske posode, morajo odgo-
varjati oz. ne smejo biti niæji od vod-
nega stolpa same napeljave. Kot
primer navajamo: pri 5 meterskem
vodnem stolpu morata pritisk pred-
polnjenja posode in pritisk polnjenja
omreæja odgovarjati najmanj vred-
nosti 0,5 barov.
2 INSTALACIJA
L Volumen
mm m
3
AR3 277 0,013109
AR4 - ARB4 377 0,019028
AR5 - ARB5 477 0,024947
Risba 3
Risba 4

Table of Contents

Other manuals for Sime AR Series

Related product manuals