EasyManua.ls Logo

Sime AR Series - 1 Epi°Paºh §Ebhta; EiA°Ø°H; IaTaEi

Sime AR Series
Print Icon
To Next Page IconTo Next Page
To Next Page IconTo Next Page
To Previous Page IconTo Previous Page
To Previous Page IconTo Previous Page
Loading...
52
1 ¶EPI°PAºH §EBHTA
1.1 EI™A°ø°H
Ó¤ÔÈ ¯˘ÙÔÛȉËÚÔ› Ϥ‚ËÙ˜ ı¤Ú-
Ì·ÓÛ˘ “AR - ARB freestanding”
ÌÂÏÂÙ‹ıËÎ·Ó Î·È Î·Ù·Û΢¿˙ÔÓÙ·È
Û‡Ìʈӷ Ù˘ ∂˘Úˆ·
ïΤ˜ ηÙ¢-
ı˘ÓÙ‹ÚȘ Ô‰ËÁ›Â˜ ÂÚ› ÙˆÓ ·Ô‰fi-
ÛˆÓ
C∂∂ 92/42.
XÚËÛÈÌÔÔÈÔ‡ÓÙ·È
Ì ÂÏ·ÊÚ‡ ·Î¿ı·ÚÙÔ ÂÙڤϷÈÔ
Î·È ¤¯Ô˘Ó ÌÈ· Ù¤ÏÂÈ· ÈÛÔÚÚÔË̤ÓË
η‡ÛË Ì ÌÂÁ¿ÏË ıÂÚÌÈ΋ ·fi‰Ô-
ÛË ÁÈ· ÔÈÎÔÓÔÌÈ΋ ÏÂÈÙÔ˘ÚÁ›·.
Ϥ‚ËÙ˜ “ARB” ۯ‰ȿÛıËηÓ
ÁÈ· Ó· ÚÔÛʤÚÔ˘Ó ÎÂÓÙÚÈ΋ ı¤Ú-
Ì·ÓÛË Î·È ˙ÂÛÙfi ÓÂÚfi ¯Ú‹Û˘ ÂÓÒ
ÔÈ “AR” ÌfiÓÔ ÎÂÓÙÚÈ΋ ı¤ÚÌ·ÓÛË.
ÂÍ·ÚÙ‹Ì·Ù· ÙÔ˘ Ϥ‚ËÙ· “AR”
¢ڛÛÎÔÓÙ·È Û ÙÚ›· ͯˆÚÈÛÙ¿
ÎfiÏ·: ÛÒÌ· Ϥ‚ËÙ·, Â͈ÙÂÚÈο
η¿ÎÈ· ÌÂ Ê˘ÏÏ¿‰ÈÔ Î·È ËÏÂÎÙÚÈÎfi
›Ó·Î·.
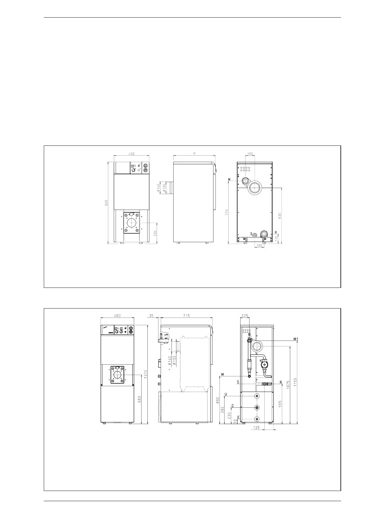
∂ÈÎ. 1
1.2
¢IA™TA™EI™
1.2.1
§¤‚ËÙ˜
“AR”
1.2.2
§¤‚ËÙ˜
“ARB”
AR3 AR4 AR5
P
M‹ÎÔ˜
375 475 575
M
¶ÚÔÛ·ÁˆÁ‹
1
1
/2
”1
1
/2
”1
1
/2
R
EÈÛÙÚÔÊ‹
1
1
/2
”1
1
/2
”1
1
/2
S
Õ‰ÂÈ·ÛÌ· ϋڈÛË
1/2” 1/2” 1/2”
ARB4 ARB5
M1
K˘ÎÏÔÊ. ˙ˆÓÒÓ
1
1
/4
”1
1
/4
M
¶ÚÔÛ·ÁˆÁ‹
1” 1”
R
EÈÛÙÚÔÊ‹
1” 1”
S
Õ‰ÂÈ·ÛÌ· ϋڈÛË
1/2” 1/2”
E
NÂÚfi XÚ‹Û˘ ÎÚ‡Ô
3/4” 3/4”
C
EÈÛÙÚÔÊ‹ N.X.
3/4” 3/4”
U
¶ÚÔÛ·ÁˆÁ‹ N.X.
3/4” 3/4”
∂ÈÎ. 1/a

Table of Contents

Other manuals for Sime AR Series

Related product manuals