EasyManua.ls Logo

Sime AR Series - 1 Descrizione Dellapparecchio; Introduzione; Dimensioni

Sime AR Series
Print Icon
To Next Page IconTo Next Page
To Next Page IconTo Next Page
To Previous Page IconTo Previous Page
To Previous Page IconTo Previous Page
Loading...
1.1 INTRODUZIONE
Le caldaie di ghisa AR - ARB free-
standing” sono studiate e progettate
in linea con i dettami della Direttiva
Rendimenti CEE 92/42. Funzionano a
gasolio con una combustione perfetta-
mente equilibrata e gli elevati rendi-
menti consentono di realizzare cospi-
cui risparmi nei costi di esercizio.
La serie ARB” è una caldaia mista
per riscaldamento e produzione acqua
calda, mentre la serie AR” è solo per
riscaldamento.
I gruppi termici AR” vengono forniti in
tre colli separati: corpo caldaia, man-
tello con sacchetto contenente i docu-
menti e pannello di comando.
1
1 DESCRIZIONE DELL’ APPARECCHIO
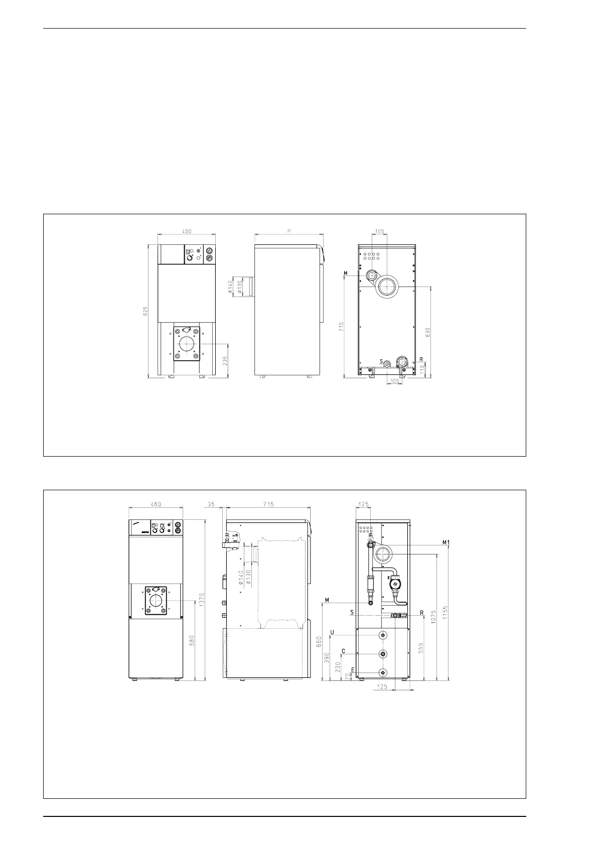
1.2 DIMENSIONI
1.2.1 Serie “AR”
1.2.2 Serie “ARB”
Fig. 1
AR3 AR4 AR5
P Profondità 375 475 575
M Mandata impianto 1
1
/
2
”1
1
/
2
”1
1
/
2
R Ritorno impianto 1
1
/
2
”1
1
/
2
”1
1
/
2
S Scarico caldaia 1/2” 1/2” 1/2”
ARB4 ARB5
M1 Mandata impianto a zone 1
1
/
4
”1
1
/
4
M Mandata impianto 1” 1”
R Ritorno impianto 1” 1”
S Scarico caldaia 1/2” 1/2”
E Entrata acqua sanitaria 3/4” 3/4”
C Ricircolo 3/4” 3/4”
U Uscita acqua sanitaria 3/4” 3/4”
Fig. 1/a

Table of Contents

Other manuals for Sime AR Series

Related product manuals